Выберите валюту для сайта:
BYN
Подать БЕСПЛАТНО

Продажа 1-этажной дачи в Малинники Минская область, 7000USD, код 182889

44 м2
21 964 р.
Дача
Город Малинники
Адрес Малинники
Направление Пуховичское
Удаленность от МКАД 37.49 км
Год постройки 2000
  
Общая площадь 44 м2
Участок 4.12 соток
Площадь дома 44 м2
Этажей 1
Тип отопления печное
Водоснабжение Сезонное
Канализация Есть
Удобства
Лес
Водоем
Магазин

Описание

Продаётся садовый домик в СТ «Малинники», Пуховичского района, в 2 км от деревни Узляны!
Месторасположение: Пуховичское направление, 45 км от МКАД, 5 км от п.г.т. Руденска.
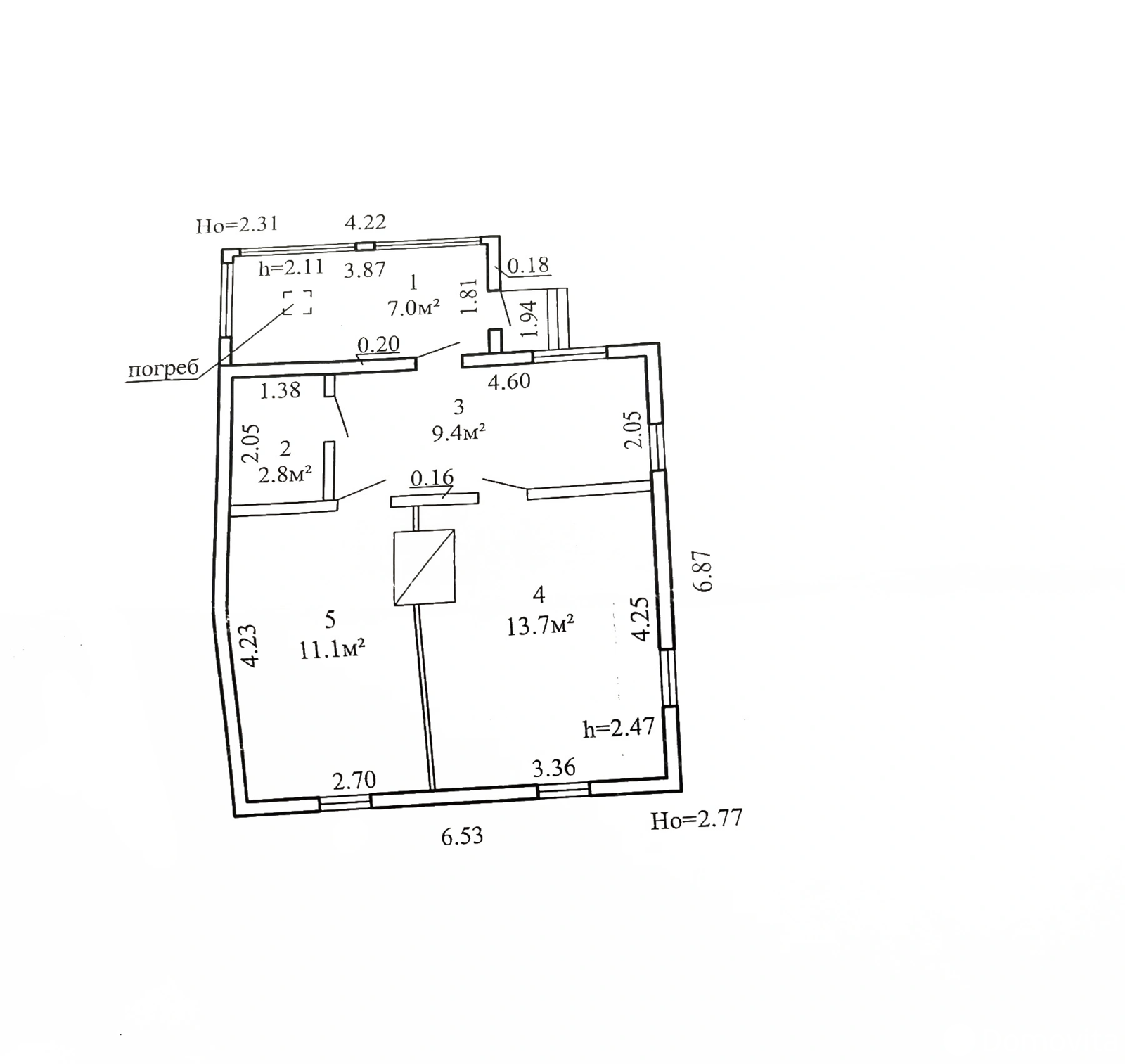
Описание: одноуровневый деревянный, обшит вагонкой садовый домик, 2000 года постройки, общая площадь 44 кв. м, жилая 24.8 кв. м, две комнаты (11.1 и 13.7 кв. м, кухня 9.4 кв. м, веранда, подвальное помещение, внутренняя отделка – обои, пол доска пола, окна деревянные, входная и межкомнатные двери деревянные. Крыша -шифер.
Возле дачи стоянка для автомобиля.
Коммуникации: свет, вода-сезонная, заведена в дом, канализация местная, санузел на улице, отопление-печное.
Земельный участок 4.12 соток, в частной собственности, обработан, огорожен сеткой-рябицей, на участке растут плодово-ягодные насаждения.
Имеются хозпостройки: деревянный сарай, навес для дров, туалет, теплицы.
Хорошие подъездные пути – асфальт и гравийная дорога (700 метров до домика). В весенне-летний период от СТ постоянно курсируют автобусы и маршрутное такси, которые доставляют дачников на ж/дорожные станции «Руденск» к электропоездам, а также до станции метро «Могилевская» и «Пушкинская» г. Минска. Ближайшее железнодорожная станция "Рыбцы" (3 км). На территории СТ расположен магазин продовольственных и промышленных товаров.
В 2 км озеро.
!Смотрите еще больше дач на нашем Telegram канале @nedvizhimost_bel

Код объекта: 182889 Договор с собственником: 75/1 от 26.05.2025 Опубликовано: 26.05.2025 Обновлено: 16.03.2026
0 / 25 / 554
Дача, 44 м2
Малинники
21 062 р.
Григорий
Пожалуйста, скажите, что нашли этот объект на Domovita.by
+
Фильтр сохранен