Подать БЕСПЛАТНО

Продажа 3-комнатной квартиры в Марьиной Горке, ул. Новая Заря, д. 20

Минская область, г. Марьина Горка, ул. Новая Заря, 20
Показать на карте
135 083 р.
Цена за м2: 2 071 р.
Код объекта: 1214901
3 комнаты
62.5 м2
1 этаж из 5
Обновлено: 11.12.2025
135 083 р.
Цена за м2: 2 071 р.
Предложить свою цену

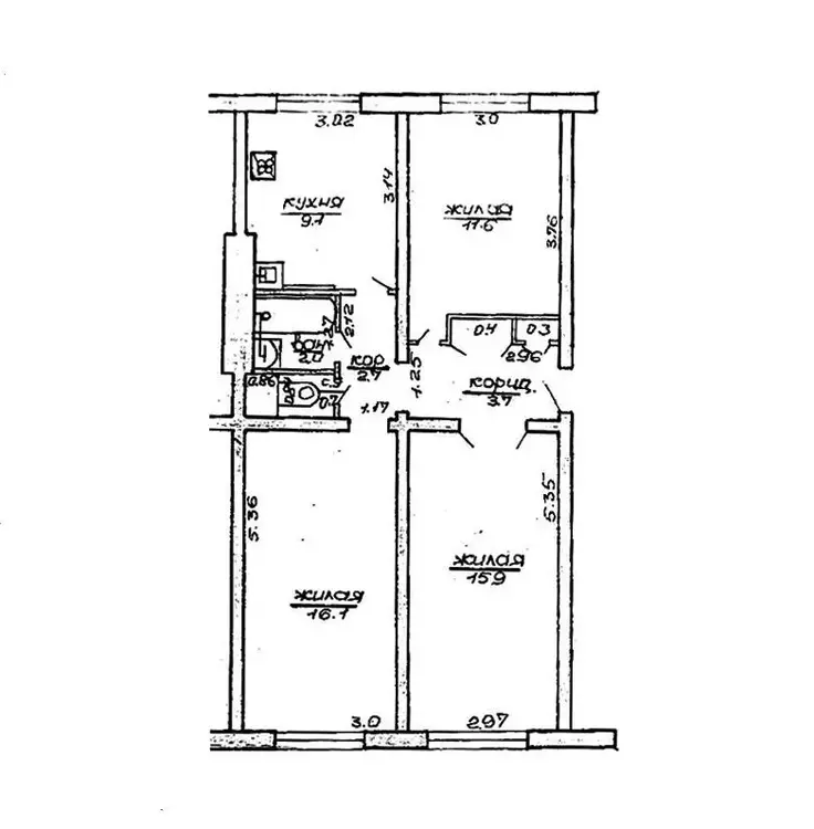
О квартире

Площадь
62.5 м2
общая
43.6 м2
жилая
9.1 м2
кухня
Санузел
раздельный
Балкон
Лоджия

О доме

Этаж
1 из 5
Материал стен
Панельный
Год постройки
1981

Описание

Продаётся тёплая 3-х ком.квартира в Марьиной Горке по ул.Новая Заря д.20.

Квартира находится на первом высоком этаже, что является большим плюсом для тех, кто не любит подниматься по лестничным пролётам.

Во всей квартире установлены стеклопакеты, поэтому квартира очень тёплая, что создаёт дополнительный уют. На полу-линолеум, в раздельном санузле и ванной-плитка.

Квартира полностью мебелирована (вся мебель и бытовая техника входит в стоимость квартиры). Это позволит новому собственнику сразу заселиться и, по желанию, постепенно освежать ремонт. А также желающим в последствии сдавать квартиру в аренду-объект готов к сдаче! Отличный вариант дохода при сдаче квартиры в аренду, т.к. в Марьиной Горке огромный спрос на аренду квартир.

Город Марьину Горку можно назвать «Минск в миниатюре». В городе есть сеть магазинов всех известных торговых предприятий. В шаговой доступности рынок, магазины.  В городе есть своя поликлиника, 6 детских садов, гимназия, 5 школ, банки, аптеки. Для верующих -прекрасный Собор «Александра Невского».

Для любителей активного отдыха- развлекательный центр Аквамарин с сауной и бассейнами. Места для парковки, рядом детские площадки.

Отличное транспортное сообщение с Минском - каждые 10 минут маршрутки, а ещё можно добраться и на электричке, и на автобусе.

  Марьина Горка райский уголок для жителей любого возраста, поскольку рядом с городом находятся водоемы с пляжами река Птичь, Титовка и 5 мин. на авто до прекрасного озера Михайловского с оборудованным пляжем. Чистая продажа.

Звоните, приезжайте, покупайте! Согласуем показы в удобное для Вас время и ответим на все интересующие вопросы!

Поможем продать Вашу недвижимость для покупки данной квартиры!

Лицензия: №02240/362 МЮ РБ, 31.07.2018

НатальяАгент
7 лет на сайте
Условия сделки:продажа
Показать почту
Пожаловаться на объявление
Агентство недвижимости
Фаттория Плюс

Местоположение

Минская область, г. Марьина Горка, ул. Новая Заря, 20
Опубликовано: 11.12.2025

Возможно, вам будет интересно

Похожие объекты

На этой улице
139 595 р.
Цена за м2: 2 166 р.
г. Марьина Горка, ул. Новая Заря
3-комн. кв
63.8
43.9
9.4 м2
5 этаж из 5
168 924 р.
Цена за м2: 1 926 р.
г. Марьина Горка, ул. Новая Заря
4-комн. кв
87.4
56.9
11 м2
1 этаж из 5
196 843 р.
Цена за м2: 2 958 р.
г. Марьина Горка, ул. Новая Заря
3-комн. кв
66.5
42.1
8.2 м2
5 этаж из 5