Выберите валюту для сайта:
BYN
Подать БЕСПЛАТНО

Продажа 1-этажной дачи в Машиностроитель Брестская область, 75000USD, код 182948

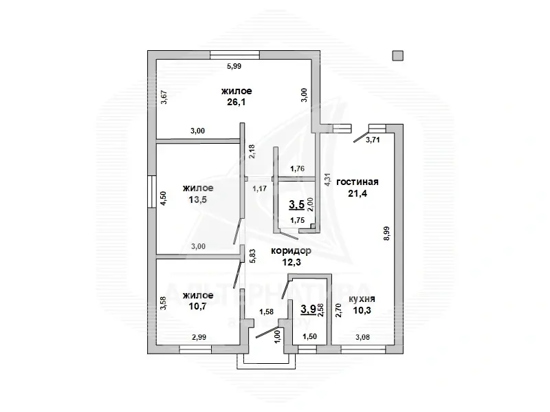
101.7 м2
Дача
Адрес Машиностроитель
Год постройки 2025
  
Общая площадь 101.7 м2
Участок 5.39 соток
Площадь дома 101.7 м2
Этажей 1
Материал стен Блоки
Отделка Без отделки
Тип отопления Газовое
Водоснабжение Скважина

Описание

Дачный дом жилого типа в Брестском р-не. 2025 г.п. 1 этаж. Общ.СНБ - 101,7 кв.м, общ.- 101,7 кв.м, жил.- 71,74 кв.м, кух.- 10,26 кв.м. 4 комнаты. Стены: материал - газосиликатный блок; утепление - пенополистирол (пенопласт); отделка фасада - оштукатурен, окрашен. Кровля: металлочерепица. Фундамент: ленточный монолитный; материал - бетон; подушка - бетонная. Коммуникации: отопление - газовый котел, газ - централизованный (в доме), водоснабжение - водонапорная башня, скважина и гидрофор, электричество - централизованное, канализация - автономная. Участок - 0,0539 га. Лот - 251064. Смотреть подробнее.

Здесь можно подписаться на рассылку новых предложений и снижения цен по ДАЧАМ и УЧАСТКАМ в Брестском регионе прямо Вам в Viber или Telegram ЗАО «АЛЬТЕРНАТИВА Брест». УНП 291427570 Лицензия № 02240/303 от 02.02.2016г. Договор номер 1064/1 от 28.05.2025
Код объекта: 182948 Договор с собственником: 28.05.2025 №1064/1 Опубликовано: 29.05.2025 Обновлено: 07.03.2026
0 / 4 / 73
Дача, 101.7 м2
Машиностроитель
225 660 р.
Усюкевич Денис Владимирович
Пожалуйста, скажите, что нашли этот объект на Domovita.by
+
Фильтр сохранен