Подать БЕСПЛАТНО

Продажа 2-этажного коттеджа в Медухово, Минская область ул. Тихая, 149900USD, код 657793

Минская область, д. Медухово, ул. Тихая
Показать на карте
Логойское направление
26 км от МКАД
412 750 р.
Код объекта: 657793
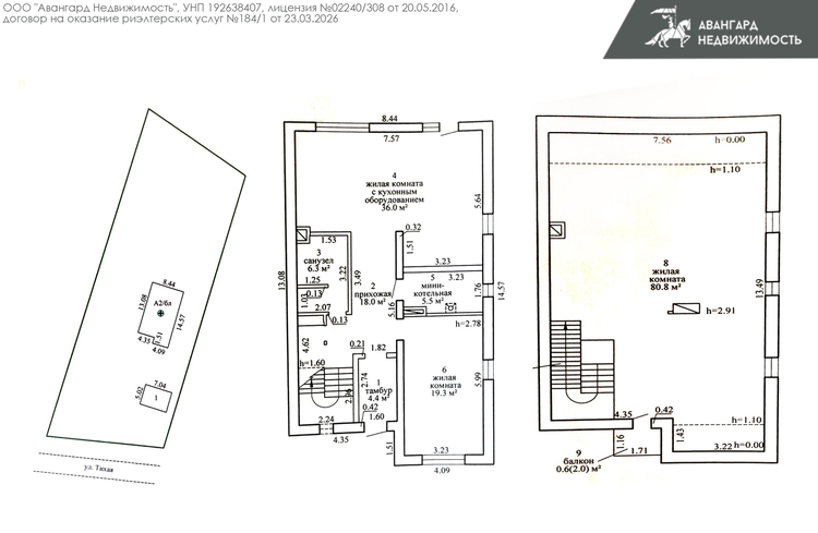
177.5 м2
24 сотки
Обновлено: 26.03.2026
412 750 р.
Предложить свою цену

О доме

Площадь общая
177.5 м2
Площадь дома
177.5 м2
Участок
24 сотки
В продаже
Целый дом
Готовность дома, %
100
Год постройки
2023
Материал стен
Блоки

Коммуникации

Газ: В доме
Электричество: Есть
Канализация: Есть

Описание

Продаётся добротный дом индивидуального дизайна и планировки в 25 км от Минска, в 10-ти мин от МКАД. Дом впечатляет, высокие потолки, просторный, много воздуха и света, а продуманная до мелочей планировка позволит создать комфорт и уют любой семье, необходима лишь внутренняя отделка, которая реализует все пожелания нового владельца.

Общая площадь дома 177 кв.м. из которых 136 кв. м.-жилая.

Стены надёжные и крепкие, выполнены из керамзитобетонных блоков, снаружи утеплены, крыша – металлочерепица. На двух уровнях дома расположено несколько комнат различного функционального назначения – гостиная, жилые комнаты, просторный коридор и лестничный проём, 2 сан.узла, пространство второго этажа – свободная планировка (предусмотрено на 3-4 комнаты, материалы для зонирования в наличии, входят в стоимость дома). В доме просторная кухня с выходом в гостиную, хоз.блок - топочная. Проделаны основные строительные и штукатурные работы, электрика разведена по всему дому, подключена местная канализация (переливная, большой объём), газовое отопление, новое оборудование и водонагреватель, центральное водоснабжение (вода очень чистая, есть вывод на улицу). На 1-м этаже тёплые полы – проведены по всем требованиям технологического процесса, качественная стяжка. Окна ПВХ, с выходом на восточную, юго-восточную и южную стороны, балконная дверь на 2-м этаже.

Зелёная зона, чудесный свежий воздух, участок в частной собственности. Дом расположен на возвышенном месте, на территории всегда чисто и сухо, после таяния снега и дождей не затапливает. На участке заложен небольшой плодовый сад, периметр участка имеет добротное ограждение. Просторный гараж, ворота подъёмные, пол забетонирован, электричество проведено.

Прекрасные подъездные пути, очень хорошие соседи.

Ждём покупателей, счастливых владельцев достойного объекта!

Этот объект можно купить в кредит, подробности уточняйте у специалиста по недвижимости.

 

Поможем продать ваш объект для покупки этого

Новые объекты в продаже каждый день

Бесплатный выезд риэлтора для оценки объекта

Поможем проверить самостоятельно найденный объект - услуга Свой Вариант

СергейАгент
9 лет на сайте
Показать почту
Пожаловаться на объявление
Агентство недвижимости
Авангард Недвижимость

Местоположение

Минская область, д. Медухово, ул. Тихая
Опубликовано: 26.03.2026