Выберите валюту для сайта:
BYN
Подать БЕСПЛАТНО

Продажа 1-этажной дачи в Межколхозстрой Минская область, 19900USD, код 183112

81.6 м2
77 928 р.
Дача
Адрес Межколхозстрой
Направление Молодечненское
Удаленность от МКАД 26 км
Год постройки 1995
  
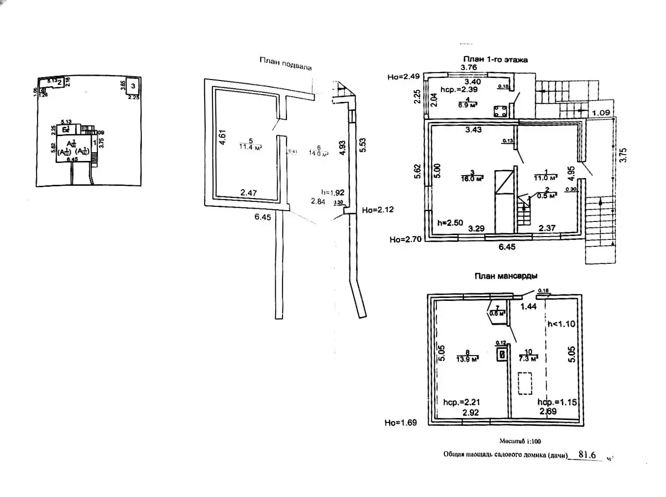
Общая площадь 81.6 м2
Участок 4.50 соток
Площадь дома 81.6 м2
Этажей 1
Материал стен Кирпич
Тип отопления Печное
Канализация Есть

Описание

Дача расположена в агрогородке Петришки, всего 20 км. от МКАД.

Удобные подъездные пути, заезд в СТ с асфальта. Регулярно и своевременно чистятся дороги, а также вывозится мусор.

Стабильное напряжение электросети и устойчивый мобильный интернет.

Многие соседи проживают в СТ круглогодично, в перспективе есть подведение газа.

Имеются магазины, аптека, банк, почта, амбулатория, все в шаговой доступности.  

Отличное транспортное сообщение- маршрутки либо электричка. Совсем рядом лес и масса водоёмов. Отличные доброжелательные соседи.

Участок 0,0449 га ровный, с плодовыми деревьями, кирпичными хозпостройками. На участке построен хороший кирпичный дом. Фундамент отличный.  Крыша шифер. Отопление- печное. Также есть баня.

Дом в хорошем состоянии и полностью готов к проживанию. Сезонный водопровод, электричество на участке.

Соседи респектабельные, тихие и дружелюбные.

 

Звоните, с радостью организуем показ!

Лицензия: 02240/446 МЮ РБ, 11.07.2022

Код объекта: 183112 Договор с собственником: 373/1 от 2025-06-10 Опубликовано: 11.06.2025 Обновлено: 10.03.2026
5 / 13 / 479
Дача, 81.6 м2
Межколхозстрой
59 875 р.
Светлана
Пожалуйста, скажите, что нашли этот объект на Domovita.by
+
Фильтр сохранен