О доме
Описание
**Продается дом мечты в живописном уголке у реки Неман!**
Этот экологичный и теплый дом был построен в 2013 году из соснового лафета и утеплен эковатой, что обеспечивает комфорт в любое время года. С прочным бутобетонным фундаментом, деревянными перекрытиями и крышей, покрытой гибкой черепицей, ваш новый дом обещает долговечность и надежность. Все окна оборудованы пластиковыми стеклопакетами, что дополнительно способствует энергосбережению.
**Основные характеристики:**
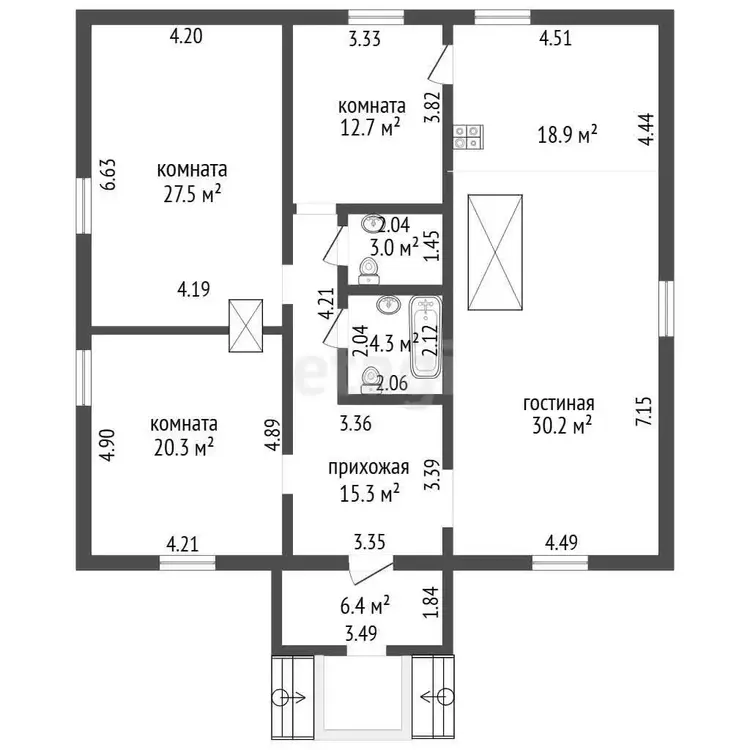
- Общая площадь: 138.6 м2, жилая площадь: 90.7 м2
- На первом этаже расположены:
- 4 уютные жилые комнаты
- Просторная кухня-гостиная
- 2 санузла (один с ванной, другой с душевой)
- Вместительная прихожая (15.3 м2) и коридор (6.4 м2) с потолками высотой 2.84 м
**Коммуникации и удобства:**
- Вода из скважины (27 м) с бойлером объемом 150 литров
- Местная канализация
- Отапливаемый дом двумя печками: одна с лежанкой и варочной плитой, вторая - между двумя комнатами
- Второй этаж - мансардный, площадью 138.6 м2, готовый под отделку
- Газовый баллон для бытовых нужд и электричество 220В/380В
- Выгребная яма на 3 бетонных кольца диаметром 1.5 м
**Участок:**
- Площадь 25 соток в пожизненно наследуемом владении
- Утепленная пристройка под гараж или мастерскую с печным отоплением
- Бревенчатая баня, 2 погреба, открытый навес и дровник
- Дополнительно 18 соток для ведения личного подсобного хозяйства
- Участок огражден забором из бетона и металлопрофиля
На приусадебном участке вы найдете кусты смородины, крыжовника, ежевики и сладкого винограда, а также плодовые деревья - черешню, вишню и яблони, которые уже радуют хорошим урожаем.
**Инфраструктура и удобства:**
- Новая асфальтированная дорога позволяет легко добраться в любое время года
- Дружелюбное соседство
- В деревне есть все необходимые удобства: детский сад, школа, 2 магазина, почтовое отделение, сельсовет, аптека и новый ФАП с лабораторией и дневным стационаром
**Отдых и досуг:**
- Река Нёман недалеко с обустроенным пляжем для семейного отдыха
- Возможность аренды байдарок с опытным инструктором для сплава по реке
- Лес вокруг полон ягод и грибов, что порадует любителей природы
**Транспортная доступность:**
- Расстояние до г. Узда - всего 15 км
- Отличное транспортное сообщение: автобусные и маршрутные остановки находятся в 20 метрах от дома
Не упустите шанс приобрести этот уникальный дом! Мы с радостью поможем продать вашу недвижимость, чтобы вы могли купить этот прекрасный уголок для жизни!
Торг возможен!
ООО «ЭТАЖИ юнайтед»
УНП: 193673318
Договор 757/1 от 13.06.2025
Лицензия на оказание риэлтерских услуг №02240/460 МЮ РБ от 03.04.2023






















