Подать БЕСПЛАТНО

Продать 1-этажный коттедж в Молодечно, Минская область ул. Вилейская, д. 67, 47234USD, код 658095

Минская область, г. Молодечно, ул. Вилейская, 67
Показать на карте
Молодечненское направление
68.55 км от МКАД
133 034 р.
Код объекта: 658095
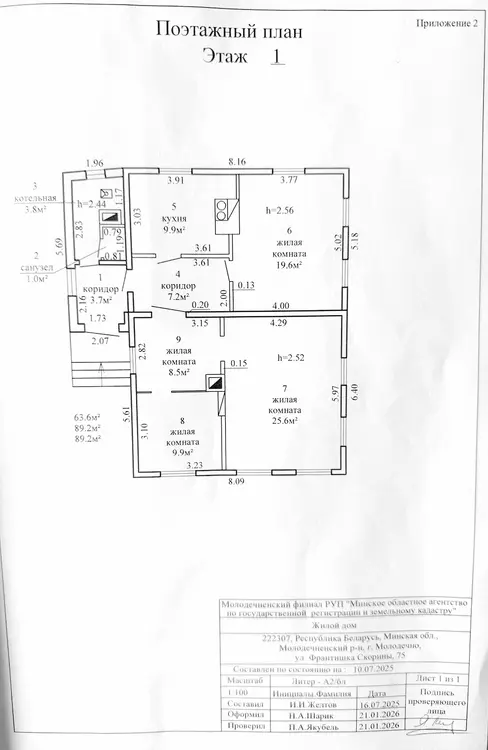
4 комнаты
89 м2
7 соток
Обновлено: 03.04.2026
133 034 р.
Предложить свою цену

О доме

Площадь общая
89 м2
Площадь дома
89 м2
Участок
7 соток
В продаже
Целый дом
Готовность дома, %
100
Год постройки
2025
Материал стен
дерево
Материал крыши
Шифер

Удобства

Интернет
Баня
Лес
Водоем
Магазин
Гараж
Камин

Коммуникации

Отопление: газовое
Водоснабжение: Центральное
Газ: В доме
Электричество: Есть
Канализация: Есть

Описание

Продается ДОМ с участком и хоз. постройками. Весь. По адресу г. Молодечно, ул. Вилейская, 67. ДОМ с 4 комнатами, площадь 89 м2, газовый котел с отоплением, бойлер на горячую воду круглогодично, канализация, водопровод, оптоволокно. Состояние- можно жить. Ремонт старый, но чисто. Стеклопакеты. Под домом- сухой, большой подвал. На участке также имеется хоз. постройки. А именно- ДВА ГАРАЖА (втч оштукатурен) и пом. для садового инвентаря. УЧАСТОК 7 соток. Есть сад. Забор. Рядом находится озеро, речка. Лес. Школа пятая 1200м, Магазин Копеечка 400м и Нарочанский шлях 400м, Площадь Старое место 1200м- Церковь, Аптека, Банк, Магазины. Покупая наш дом. Вы получаете ДОМ с участком, гаражи в подарок (сколько стоит отдельно гараж?). Это не квартира, а дом с участком. Можно машину поставить, детей отпустить гулять в безопасности. При этом все удобства. Подходит для льготного кредита на приобретение жилых помещений по Указу от 06.03.2025 номер 95. Договориться на просмотр, звоните сейчас. От собственника!

по домуАгент
5 лет на сайте
Показать почту
Пожаловаться на объявление

Местоположение

Минская область, г. Молодечно, ул. Вилейская, 67
Опубликовано: 03.04.2026