Подать БЕСПЛАТНО

Продажа 1-этажного коттеджа в Молодечно, Минская область ул. Виленская, 21200USD, код 657692

Минская область, г. Молодечно, ул. Виленская
Показать на карте
Молодечненское направление
56 км от МКАД
58 877 р.
Код объекта: 657692
56.8 м2
8.64 соток
Обновлено: 24.03.2026
58 877 р.
Предложить свою цену

О доме

Площадь общая
56.8 м2
Площадь дома
56.8 м2
Участок
8.64 соток
В продаже
Целый дом
Материал стен
Дерево

Коммуникации

Водоснабжение: Колодец
Электричество: Есть
Канализация: Есть

Описание

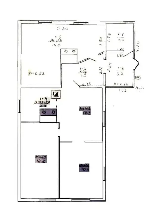
Продается  бревенчатый дом площадью 56,8 м2 с участком 8.64сотки  с отличным расположением по улице Виленской в г. Молодечно

Пдощади: 56,8/48,1/  4,4 м2.

Дом требует ремонта. Частично проведен ремонт крыши. Отопление печное (2 печки). На участке есть колодец.

Участок  огорожен сеткой - рабицей, обрабатывался. Есть плодовые деревья и кустарники яблони, груша, вишни, малина,земляника.

По улице есть все центральные коммуникации газ, вода, канализация.

Отличная транспортная доступность во все районы города с площади Свободы. Хорошая инфраструктура- рядом магазины, 2 школы, детский сад. 

Активному покупателю торг! Ждем ваших заинтересованных  предложений!

Покупатель НЕ ПЛАТИТ за услуги агентства, но приобретет юридически проверенную недвижимость! 

Работаем со всеми видами кредитов, материнским капиталом, субсидиями.

Консультации по покупке, продаже, обмену недвижимости обращайтесь по адресу: г. Молодечно, ул. Громадовская, 1-2.

ООО "Агентство недвижимости ГермесГрупп». УНП 193776843. Лицензия Министерства Юстиции Республики Беларусь  N 02240/487 от 07.08.2024 г.

ГермесгруппАгент
год на сайте
Показать почту
Пожаловаться на объявление
Агентство недвижимости
"Агентство недвижимости Гермес Групп"

Местоположение

Минская область, г. Молодечно, ул. Виленская
Опубликовано: 24.03.2026

Похожие объекты

На этой улице
291 606 р.
г. Молодечно, ул. Виленская
5-комн. кв
131.6
101.7
10 м2
14 соток