О квартире
О доме
Описание
Лучшее предложение в Молодечно! 2-комнатная квартира в центре — ул. Великий Гостинец, 72
Идеальный вариант для жизни или инвестиций в одном из самых востребованных районов города — здесь есть всё, что нужно для комфортной жизни.
О квартире
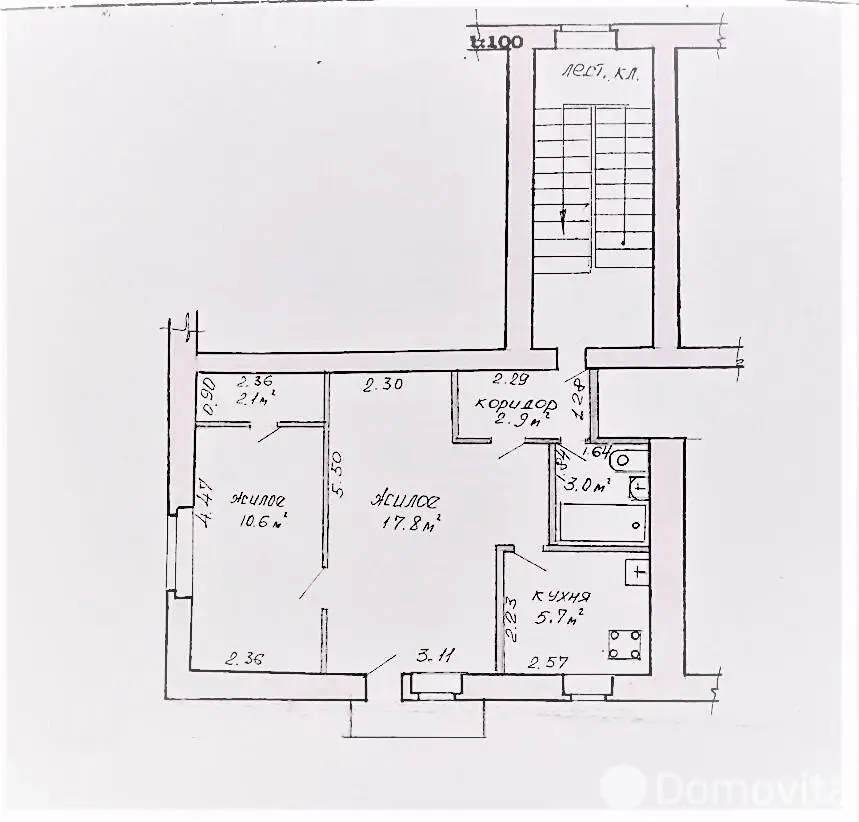
Продаётся светлая и уютная 2-комнатная квартира общей площадью 42,8 м2 на комфортном 4 этаже из 5 в кирпичном доме.
✔Кирпичный дом — отличная тепло- и шумоизоляция
✔Удачный средний этаж
✔Окна на две стороны — максимум естественного света
✔Уже можно заехать и жить, а также идеальная возможность реализовать дизайн по своему вкусу
Отличный вариант как для собственного проживания, так и для сдачи в аренду.
Планировка, которая работает на вас
- Комнаты: 17,8 м2 и 10,6 м2
→ легко зонировать под спальню, гостиную, кабинет или детскую
→ из одной комнаты есть балкон - Кухня 5,7 м2
→ компактная и функциональная
→ есть потенциал объединения с комнатой под современную кухню-гостиную - Просторная кладовая
→ идеально под гардеробную или систему хранения - Совмещённый санузел, установлены счётчики воды
- Полы — доска
- Металлическая входная дверь, проведено оптоволокно
Дом и окружение
✔Чистый подъезд
✔Спокойные, порядочные соседи
✔Удобная парковка рядом с домом
Локация — один из главных плюсов
Вы живёте в центре событий, но при этом рядом с зелёной зоной
- Парк Победы — всего ~500 метров
→ прогулки, спорт, отдых у воды, аттракционы - Уютные скверы и аллеи вдоль улицы
- Всё рядом:
✔Детские сады №11, 15, 21, 25
✔Школы №8, 14 и гимназия №6
✔Медцентры, аптеки, банки, салоны - Магазины в шаговой доступности:
«Белмаркет», «Евроопт», «Копеечка», «Fix Price» и др.
Транспорт — удобно добраться в любую точку города
- Остановки «Библиотека» и «Великий Гостинец» — 2 минуты пешком
- Удобное сообщение со всеми районами города
- Популярные маршруты: №2, 5, 10, 11, 12
Почему это действительно выгодно
✔Квартира без переплаты за чужой ремонт — создайте интерьер своей мечты
✔Уже в жилом состоянии — можно заселиться сразу
✔Удачная планировка без лишних метров
✔Востребованный район — отличная ликвидность и рост стоимости
Звоните прямо сейчас
Такие варианты долго не задерживаются на рынке.
ООО «ЭТАЖИ юнайтед»
УНП: 193673318
Договор 643/1 от 25.03.2025
Лицензия на оказание риэлтерских услуг №02240/460 МЮ РБ от 03.04.2023























