Подать БЕСПЛАТНО

ОБЪЕКТ В АРХИВЕ

Фотографии отсутствуют

Продать 2-этажный дом в Мощенке, Минская область ул. Центральная, 129000USD, код 642658

Минская область, д. Мощенка, ул. Центральная
Показать на карте
Логойское направление
23 км от МКАД
377 467 р.
Код объекта: 642658
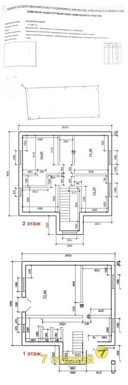
153.8 м2
12.49 соток
Обновлено: 02.10.2025
377 467 р.
Предложить свою цену

О доме

Площадь общая
153.8 м2
Площадь дома
153.8 м2
Участок
12.49 соток
В продаже
Целый дом
Готовность дома, %
90
Год постройки
2024
Материал стен
Блоки
Материал крыши
Металлочерепица

Удобства

Кондиционер
Видеонаблюдение
Баня
Лес
Магазин

Коммуникации

Отопление: электрическое
Водоснабжение: Скважина
Газ: Нет
Электричество: Есть
Канализация: 1

Описание

Рядом в аг. Острошицы: - Магазины - Школа - Почта - Дом культуры - Храм - Быстрая логистика до Минска: автобусы, маршрутки каждые 20 минут Instagram: realestate.minsk Окажем помощь в получении кредита или позитивно продадим Вашу недвижимость для покупки этого дома Тех. характеристики дома: Фундамент – свайно- ростверковый на всех строениях, применяемая марка бетона М350. Стены дома – газосиликатные блоки D500 толщина 400мм. Баня – керамзитобетонные полнотелые 300мм. Фасад – утеплен каменной ватой Paroc Linio 15 50мм, декоративная штукатурка корник 1,5мм, выкраска в два слоя силиконовой финской краской. Внутренние стены и перегородки: оштукатурены цементно-песчаной штукатуркой, все поверхности армированы щелочесткой фасадной сеткой. Перекрытие: железобетонные плиты Полы на первом этаже: утеплены пеноплексом толщиной 100 мм., везде залита чистовая стяжка. Полы на втором этаже: уложен демферный слой, чистовая стяжка. Кровля: покрытие модульная Польская металлочерепица из премиальной Шведской стали SSAB 0.5 с полиуретановым покрытием, установлены трубчатые снегозадержания овального сечения, под металлом уложена польская супердифузионная мембрана гидроизоляции 180 плотности. Подшивка крыши под мореный дуб. Штучные торцевые планки – имитация керамики. Утепление кровли выполнено минеральной ватой Paroc Extra толщиной 250 мм с перпендикулярным швом, самое эффективное и с большим запасом. Пароизоляция польская Dachowa фольгированная, все швы проклеены немецким скотчем Delta. Установлена утепленная чердачная лестница. Остекление: пвх профиль KBE 76, фурнитура ROTO, стекло мультифункциональное, односторонняя ламинация. Подоконники Danke. Возле окон по обе стороны установлены демпферные уголки от образования трещинок-паутинок. Электрика: ко всем приборам отдельные автоматы немецкие EATON, грамотная разбивка по секциям, только Гостовские провода, силовые и слаботочные провода на охранную систему и видеонаблюдение, спец. провод в нужное место для спутникового TV. Два электрических счетчика: один на энергопотребление, второй льготный тариф на отопление и гвс. Отопление: электрокотел Protherm, умные насосы WILO, зональная автоматика управления теплом в каждой комнате, теплые полы первого этажа и ванная второго, радиаторы на втором этаже. Выведен кабель для установки теплонасоса и кондиционера. Установлены инсталляции под туалет. В бане водонагреватель, инсталяция, туалет, умывальник, душевые трапы. Выведены незамерзающие краны полива. Входная дверь: теплая многоконтурная стальная линия Хаски B. Улица: ворота откатные с немецким приводом Hormann, забор жалюзи с бетонными пилонами, уличное освещение, газон, тротуарная плитка, ливнеприемники, щебень. Большая терраса с возможностью застекления – зимний сад.
АгентАгент
9 лет на сайте
Показать почту
Пожаловаться на объявление
Агентство недвижимости
7 этажей

Местоположение

Минская область, д. Мощенка, ул. Центральная
Опубликовано: 02.10.2025