О доме
Описание
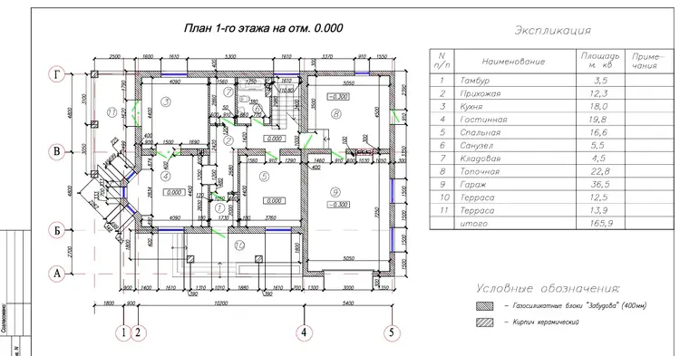
Продается просторное строение с гаражом в 20,0 км от МКАД по Могилевскому шоссе! Уютное загородное расположение всего в 20 километрах от столицы открывает отличные перспективы для создания родового поместья или загородной резиденции. Основное строение (незавершенное строительство) имеет: Общую площадь 288 кв. м., что дает огромный простор для реализации ваших дизайнерских идей. ПЛАНИРОВКА: Проектом предусмотрено 5 изолированных комнат, что идеально подходит для большой семьи или приема гостей. · Жилая площадь составляет 150 кв. м. — это просторные спальни и гостиные без тесноты. · Просторная кухня площадью 18 кв. м. станет сердцем дома, где будет комфортно собираться всем домочадцам. Ключевые особенности конструкции: · Фундамент: Комбинированный свайно-ленточный. Монолитная лента высотой 1.2 метра опирается на железобетонные сваи диаметром 40 см. Глубина свай: промежуточные — 3 метра, угловые — 3.5 метра, шаг между сваями — 2 метра. Это гарантирует устойчивость на любых грунтах и исключает усадку. · Стены: Использованы качественные блоки плотностью D500 и D400. Толщина стен дома — 300 мм, что обеспечит отличное теплосбережение после утепления. · Перекрытия: Железобетонные плиты — надежность и отличная звукоизоляция между этажами. · Цоколь: Арматура выпущена над уровнем земли на 60 см — это готовое решение для возведения высокого цокольного этажа или создания монолитного пояса. Дополнительные преимущества: Просторный гараж на 36.5 кв. м. Это не просто место для машины, а полноценное помещение для мастерской, хранения инвентаря или техники. (С ямой). Прекрасная локация: Могилевское направление славится хорошей транспортной доступностью и развитой инфраструктурой. Рассмотрим различные формы расчёта. Звоните — с удовольствием покажу квартиру и отвечу на все вопросы. ООО «Жилой проспект» УНП: 193890816 Договор № 53 /1 от 02.03.2026 Лицензия Министерства юстиции Республики Беларусь № 02240/518 от 15.08.2025 г.

















