Выберите валюту для сайта:
BYN
Подать БЕСПЛАТНО

Продажа 2-этажной дачи в Муховец-2 Брестская область, 55000USD, код 180868

106.2 м2
Дача
Город Муховец-2
Адрес Муховец-2
Год постройки 2019
  
Общая площадь 106.2 м2
Участок 3.94 соток
Площадь дома 106.2 м2
Этажей 2
Материал стен Блоки
Отделка С ремонтом
Тип отопления Печное
Водоснабжение Скважина

Описание

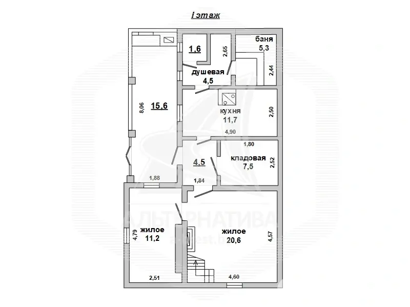
Дачный дом жилого типа в Брестском р-не. 2019 г.п. 1 этаж, мансарда. Общ.СНБ - 117,1 кв.м, общ.- 106,2 кв.м, жил.- 68,1 кв.м, кух.- 11,7 кв.м. 3 комнаты. Стены: материал - газосиликатный блок и керамический кирпич; утепление - пенополистирол (пенопласт); отделка фасада - оштукатурен, окрашен. Кровля: шифер. Фундамент: ленточный сборный; материал - блок ФБС; подушка - бетонная. Коммуникации: отопление - печь, электрические тёплые полы и система инфракрасного отопления, водоснабжение - скважина и гидрофор, электричество - централизованное, канализация - автономная. Участок - 0,0394 га. Лот - 242609. Смотреть подробнее.

Здесь можно подписаться на рассылку новых предложений и снижения цен по ДАЧАМ и УЧАСТКАМ в Брестском регионе прямо Вам в Viber или Telegram ЗАО «АЛЬТЕРНАТИВА Брест». УНП 291427570 Лицензия № 02240/303 от 02.02.2016г. Договор номер 2609/1 от 07.12.2024
Код объекта: 180868 Договор с собственником: 07.12.2024 №2609/1 Опубликовано: 11.12.2024 Обновлено: 28.02.2026
0 / 2 / 89
Дача, 106.2 м2
Муховец-2
165 484 р.
Семечко Наталья Николаевна
Пожалуйста, скажите, что нашли этот объект на Domovita.by
+
Фильтр сохранен