Подать БЕСПЛАТНО

ОБЪЕКТ В АРХИВЕ

Фотографии отсутствуют

Продать 2-этажный дом в Мяделе, Минская область ул. Дружная, д. 2, 67000USD, код 646018

Минская область, г. Мядель, ул. Дружная, 2
Показать на карте
Мядельское направление
130 км от МКАД
206 043 р.
Код объекта: 646018
178.2 м2
12.7 соток
Обновлено: 20.02.2025
206 043 р.
Предложить свою цену

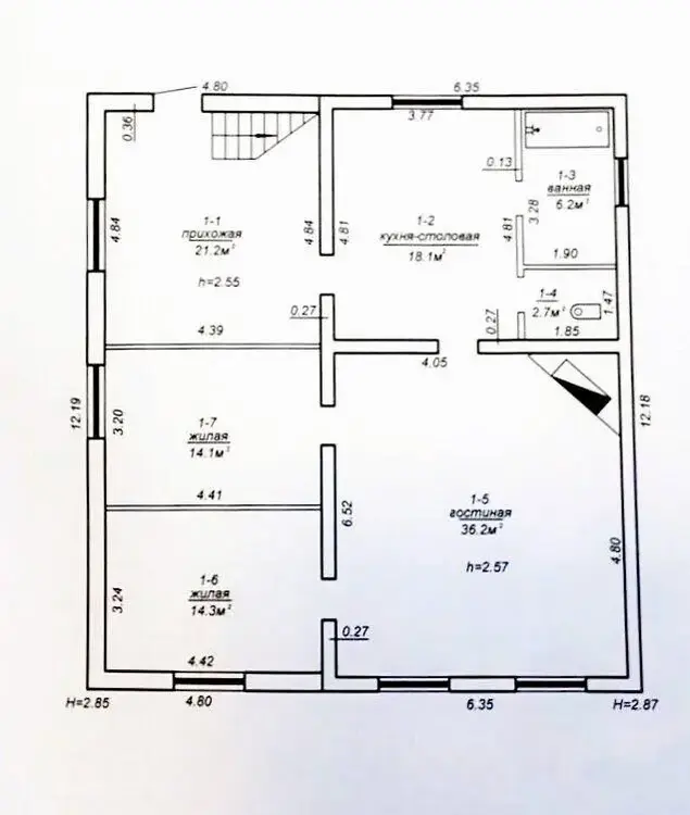
О доме

Площадь общая
178.2 м2
Площадь дома
178.2 м2
Участок
12.7 соток
В продаже
Целый дом
Готовность дома, %
100
Год постройки
2010
Материал стен
Дерево

Коммуникации

Водоснабжение: Центральное
Газ: В доме
Электричество: Есть
Канализация: Есть

Описание

Продажа загородной усадьбы в Нарочанском крае

Прекрасное место для жизни, дом расположен в г. Мядель

Большое количество лесов и озер в ближайшей доступности, это и оз. Нарочь

оз. Мястро, оз. Рудакова, оз. Баторина , где в свободное время можно отдохнуть от городской суеты и подышать свежим воздухом. А также порыбачить, съездить за грибами, ягодами.

 

Дом расположен на угловом участке в 12,7 соток, огороженном по периметру добротным забором  из металлопрофиля. Под домом обустроен просторный гараж с подвалом. Также на участке размещены навес и хоз. постройка размером 6x8м, которую при желании можно переоборудовать под баню.  

Дом представляет из себя деревянный сруб с пристройкой из блоков, утепленный мин. ватой и обшитый сайдингом. Кровля - металлочерепица. Второй этаж выполнен в виде мансарды, которую можно оборудовать под жилой этаж.

Внутри дома пространство разделено на прихожую, вместительную гостиную с камином, проходную кухню, 2 спальни и раздельный сан. узел.

Выполнена хорошая отделка, на полу ламинат, плитка. Потолки- натяжные, в гостиной выполнен из дерева. Продаётся со всей мебелью (кухня встроенная, мебель в спальнях и гостиной) и техникой (встроенные духовой шкаф, варочная панель, вытяжка, посудомойка).

 Отопление и подогрев воды обеспечивается за счёт двухконтурного газового котла, водоснабжение центральное, канализация местная.

Школа, детский сад расположены в пару остановок от дома, ходит городской автобус.

 

Отличный вариант для жизни в прекрасном месте.

 Частное унитарное предприятие «Дианэст», УНП 190124316, лицензия №02240/54  от  06.06.2005.  Договор № 53/4  от 20.02.2025

ДианэстАгент
9 лет на сайте
Показать почту
Пожаловаться на объявление
Агентство недвижимости
Дианэст

Местоположение

Минская область, г. Мядель, ул. Дружная, 2
Опубликовано: 20.02.2025