Подать БЕСПЛАТНО

Продажа 1-этажного коттеджа в Олехновичах, Минская область ул. Радошковичская, 39000USD, код 645404

Минская область, аг. Олехновичи, ул. Радошковичская
Показать на карте
Молодечненское направление
32 км от МКАД
115 081 р.
Код объекта: 645404
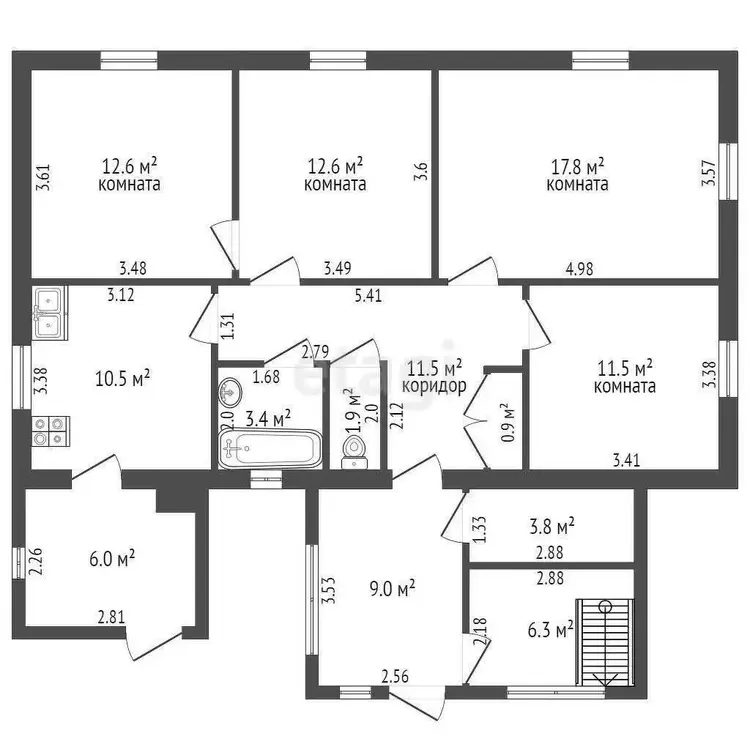
107.8 м2
18.51 соток
Обновлено: 05.02.2025
115 081 р.
Предложить свою цену

О доме

Площадь общая
107.8 м2
Площадь дома
107.8 м2
Участок
18.51 соток
В продаже
Целый дом
Готовность дома, %
100
Год постройки
1987
Материал стен
Кирпич
Материал крыши
Шифер

Коммуникации

Водоснабжение: Центральное
Газ: В доме
Электричество: Есть
Канализация: Есть

Описание

Продается дом в аг. Олехновичи, ул. Радошковичская, 39 км от МКАД в Молодечненском направлении.

Дом находится в прекрасном живописном уединенном месте, на участке площадью 18,5 сотки.

Кирпичный дом построен в 1987 году, общая площадь 107,8 кв.м, с подведенными коммуникациями: электричество ,газ, водопровод центральный (есть счетчик воды), канализация центральная.

Дом свободен. Участок огорожен сеткой рябицей. На участке имеется добротный гараж и дополнительно туалет.

В поселке 5 магазинов, детский сад, школа, банк, почтовое отделение, амбулатория, церковь Иоанна Предтечи.

Хорошее транспортное сообщение: до Минска 35 минут на машине, менее 1 часа на электричке. До ж/д станции "Олехновичи" 10 минут ходьбы.

 

 

Поможем продать Вашу недвижимость для покупки этой.

В компании работает ипотечный брокер – он поможет правильно выбрать программу кредитования и качественно оформить документацию для подачи заявки. Звоните – и мы расширим ваши финансовые возможности для правильного выбора объекта недвижимости.

ООО «ЭТАЖИ юнайтед»

УНП: 193673318

Договор 1023/1 от 24.06.2025

Лицензия на оказание риэлтерских услуг №02240/460 МЮ РБ от 03.04.2023

АлександрАгент
2 года на сайте
Показать почту
Пожаловаться на объявление
Агентство недвижимости
ООО «ЭТАЖИ юнайтед»

Местоположение

Минская область, аг. Олехновичи, ул. Радошковичская
Опубликовано: 05.02.2025