Подать БЕСПЛАТНО

Продажа 2-этажного коттеджа в Острошицах, Минская область ул. Минская, 297000USD, код 607189

Минская область, аг. Острошицы, ул. Минская
Показать на карте
Логойское направление
19 км от МКАД
881 404 р.
Код объекта: 607189
251.5 м2
24.78 сотки
Обновлено: 02.04.2022
881 404 р.
Предложить свою цену

О доме

Площадь общая
251.5 м2
Площадь дома
251.5 м2
Участок
24.78 сотки
В продаже
Целый дом
Год постройки
2014
Материал стен
Блоки
Материал крыши
Металлочерепица

Удобства

Интернет
Баня
Лес
Магазин
Гараж
Камин

Коммуникации

Отопление: печ
Водоснабжение: Центральное
Газ: В доме
Электричество: Есть
Канализация: Есть

Описание

 - 100% готовности, дом пригоден для постоянного проживания

- 19 км от МКАД по Логойской трассе 

- Ровный участок 25 соток, частная собственность 

- Асфальт - до участка 

- Общая площадь дома - 251,5 м2, 2 уровня + подвал 

- 2014 г.п., блочные стены, утеплены и оштукатурены 

- Крыша- гибкая металлочерепица

- Стеклопакеты 

- Металлическая дверь 

- Пол: ламинат\ плитка 

- Все коммуникации разведены по дому 

- Установлены все приборы индивидуального учёта 

- Отопление- газ

- Центральное водоснабжение, горячая и холодная вода в доме 

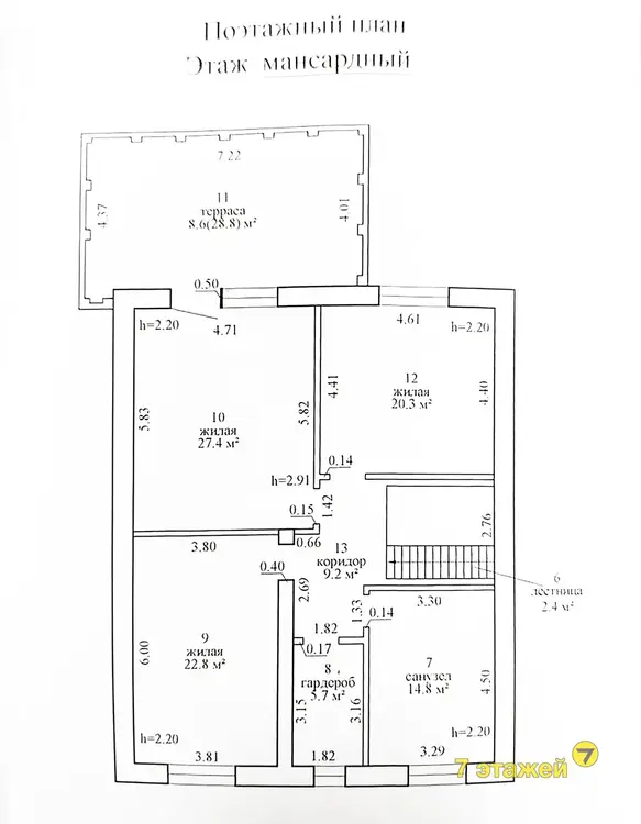
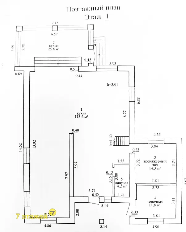
- Местная канализация, 2 санузла 

- Баня на дровах 

- 5 комнат (4 спальни + гостиная с камином) 

-  Кухня 15.7 м2 

- Топончая\ постирочная 

- Подвал 

- Телефон 

- Интернет 

- Полная укомплектованность мебелью и бытовой техникой 

- Гараж с распашными воротами + навес на 2 автомобиля 

- Забор по границам участка, откатные ворота на дистанционном управлении (пульт) 

-  Дренажная система водоотведения за пределы участка

- Терраса с качелями и обеденной группой 

- Ландшафтный дизайн, благоустроенный двор, утопающая в зелени местность 

- Рядом лес

- Развитая инфраструктура: д/сад, школа, амбулатория, 2 магазина, банк, почта. К дому приезжает школьный автобус и отвозит детей в школу в Острошицкий городок. До горнолыжного центра « Силичи» - 5 км., недалеко Дубровское водохранилище.

Поможем продать вашу недвижимость для покупки этой.

Площадь указана по СНБ

АгентАгент
7 лет на сайте
Показать почту
Пожаловаться на объявление
Агентство недвижимости
Фаттория Плюс

Местоположение

Минская область, аг. Острошицы, ул. Минская
Опубликовано: 02.04.2022

Похожие объекты

На этой улице
486 587 р.
аг. Острошицы, ул. Минская
280.9
84.8
113.6 м2
75 соток
250 523 р.
аг. Острошицы, ул. Минская
184.5
м2
24.58 undefined