Выберите валюту для сайта:
BYN
Подать БЕСПЛАТНО

Купить 1-этажную дачу в Острошицах Минская область, 245000USD, код 180054

185.5 м2
717 100 р.
Дача
Город Острошицы
Адрес ул. Новая
Направление Логойское
Удаленность от МКАД 23.46 км
Год постройки 2019
  
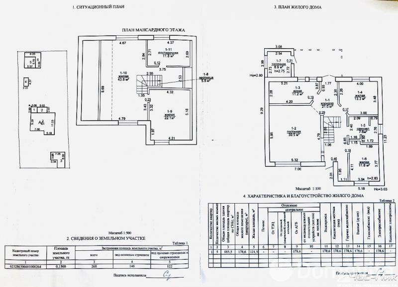
Общая площадь 185.5 м2
Участок 20.00 соток
Площадь дома 185.5 м2
Комнат 5
Этажей 1
Удобства
Интернет
Лес
Магазин

Описание

Продаётся великолепный коттедж премиум-класса 100% готовности с мебелью в престижном коттеджном посёлке "аг.Острошицы"; асфальт до участка; приглашаем на просмотр! Энергоэффективный блочный дом; построенный по индивидуальному архитектурному дизайн-проекту; продуманная архитектурная планировка; все строительные и отделочные работы выполнялись по проектным чертежам, в строгом соответствии с технологическими процессами и знаниями новейших тенденций современного деревянного загородного строительства; высококачественные лучшие импортные материалы строительства и отделки; сантехника, керамика, напольное покрытие, освещение; мебель; кухня; двери; премиальная бытовая техника; долговечный и надёжный конструктив: -Фундамент - монолитный железобетонный с утеплением и гидроизоляцией; -Стены блочные с утеплением и декоративной штукатуркой; -Кровля - черепица с утеплением; -Качественные энергосберегающие стеклопакеты; -Современная топочная с погодозависимой автоматикой, насосные группы, радиаторы, водяные тёплые полы, бойлер, стабилизатор напряжения, датчики управления температурой, химводоподготовка; -Все коммуникации: свет 380, газ, водопровод скважина, канализация септик, оптоволокно (телефон-интернет), кондиционирование; - Банный комплекс - гостевой дом - с сауной; гараж с хозяйственной постройкой; -Земельный участок 18 соток, ландшафтный дизайн; газон, декоративное освещение, мощение тротуарной плиткой, ливневая канализация; -Респектабельные соседи; -Коттеджный Посёлок «Острошицы» с подъездными путями по асфальтированным дорогам, расположен в экологически чистой местности, окружен лесными массивами; 15 минут до Логойского тракта; Логойское направление. -Развитая инфраструктура на доступном расстоянии: магазины, школа и детский сад, почта, банк, медучреждения и аптеки, озеро. -Чистейший сосновый лес, рыбалка, купание, грибы, ягоды. Одно из лучших мест в пригороде Минска для жизни и отдыха, не упустите свой шанс приобрести великолепный загородный особняк, для успешных людей, торг. Поможем профессионально быстро и выгодно продать Вашу недвижимость в связи с покупкой вышеуказанного объекта недвижимости, размещение рекламных объявлений на лучших специализированных интернет площадках Республики Беларуси, России, стран ближнего и дальнего зарубежья-70 стран мира, Профессиональная фото-видео-аэросъемка, рекламные ролики в социальных сетях, а также использование самых современных и уникальных технологий для успешной продажи Вашего объекта недвижимости. Ответим на Ваши вопросы, предоставим всю необходимую информацию. Напишите Нам в удобный для Вас мессенджер: Viber | Telegram | WhatsApp. Риэлтер Александр Владимирович.
Код объекта: 180054 Договор с собственником: 10.09.2024 №185/3 Опубликовано: 16.09.2024 Обновлено: 07.01.2026
0 / 1 / 118
Дача, 185.5 м2
Острошицы, ул. Новая
702 758 р.
АН Час-Пик
Пожалуйста, скажите, что нашли этот объект на Domovita.by
+
Фильтр сохранен