Подать БЕСПЛАТНО

ОБЪЕКТ В АРХИВЕ

Продажа 1-этажного коттеджа в Острянах, Витебская область , 10990USD, код 652211

Витебская область, д. Остряне,
Показать на карте
35 755 р.
Код объекта: 652211
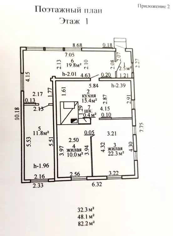
82.2 м2
25 соток
Обновлено: 11.08.2025
35 755 р.
Предложить свою цену

О доме

Площадь общая
82.2 м2
Площадь дома
82.2 м2
Участок
25 соток
В продаже
Целый дом
Год постройки
2004
Материал стен
Дерево

Коммуникации

Отопление: Печное
Водоснабжение: Колодец
Электричество: Есть
Канализация: 0

Описание

Продается большой благоустроенный дом! Расположение: Деревня с возможностью регистрации, всего в 12 километрах от города. Рядом озеро Обуховское (8 минут пешком). Большой, просторный дом, построенный на живописном участке размером 25 соток, участок ровный, правильной формы. Реконструкция проведена в 2004 году, внутри светлое пространство с высокими потолками и приятным домашним теплом от печи. Вода обеспечивается общим уличным колодцем (находится в начале улице). Экологичная атмосфера деревни гарантирует чистоту воздуха и приятную жизнь вне городского шума. Дополнительные удобства: Присутствует удобная пристройка, на территории расположены полезные хозяйственные постройки — просторный сарай и русская баня по-чёрному, идеальное место для расслабления и оздоровительных процедур. Если ищете жилье вдали от городских стрессов, где можно насладиться жизнью на свежем воздухе, этот вариант точно для Вас! Посмотрите, почувствуйте себя частью природы и обеспечьте себе счастливое будущее в собственном доме! ООО «Агентство недвижимости «Любимый город» УНП: 391907782. Лицензия Министерства юстиции РБ 02240/377 от 16.06.2019 (бессрочная) на право осуществления деятельности по оказанию юридических услуг - риэлтерские услуги.
Любимый городагент
3 года на сайте
Показать почту
Пожаловаться на объявление
Агентство недвижимости
"Любимый город"

Местоположение

Витебская область, д. Остряне,
Опубликовано: 11.08.2025