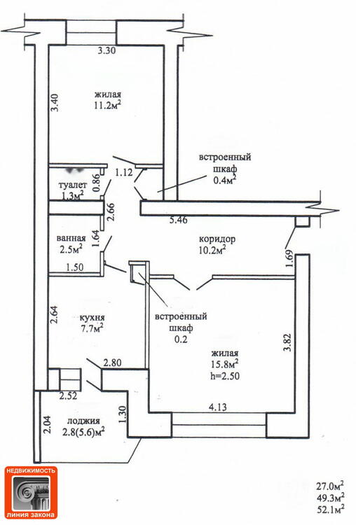
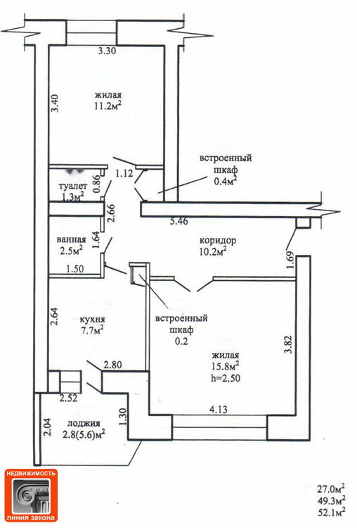
О квартире
Площадь
49.2 м2
общая
27 м2
жилая
7.7 м2
кухня
Отдельных комнат
2 комнаты
Санузел
раздельный
Балкон
Лоджия
О доме
Этаж
3 из 5
Материал стен
Кирпичный
Год постройки
1985
Описание
Евгений Васильевич — Агент
9 лет на сайте
Условия сделки:Чистая продажа
Показать почту
Пожаловаться на объявление
Агентство недвижимости
Недвижимость линия закона
УНП: 490680213 Лицензия: от 04.04.2008
Договор №: 10.10.2023 №491/1








