Подать БЕСПЛАТНО

ОБЪЕКТ В АРХИВЕ

Фотографии отсутствуют

Продать 2-этажный коттедж в Петришках, Минская область ул. Цветочная, д. 5А, 270000USD, код 654784

Минская область, аг. Петришки, ул. Цветочная,
Показать на карте
Молодечненское направление
31.13 км от МКАД
749 844 р.
Код объекта: 654784
17 комнат
300 м2
19.5 соток
Обновлено: 05.11.2025
749 844 р.
Предложить свою цену

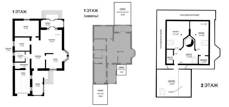
О доме

Площадь общая
300 м2
Площадь дома
300 м2
Участок
19.5 соток
В продаже
Целый дом
Готовность дома, %
100
Год постройки
2012
Материал стен
кирпич

Удобства

Сигнализация
Видеонаблюдение
Интернет
Баня
Лес
Водоем
Магазин
Гараж
Камин

Коммуникации

Отопление: центральное
Водоснабжение: Центральное
Газ: В доме
Электричество: Есть
Канализация: Есть

Описание

Уютный дом из красного кирпича 2-этажный - Участок-сад с полной приватностью в живописном месте - Участок и дом в частной собственности - Дом оштукатурен и утеплён - Установлены утеплённые стеклопакеты - Потолки 3,1 м - Благоустроенная кухня - Джакузи в ванной - Вода центральная - Канализация центральная - Отделка стен: декоративная штукатурка - Электричество проведено - Тёплый пол - Котёл Вайлент 24 кВт - Толщина стен 70 см - Утеплитель PAROC - Гараж со смотровой бетонированной ямой - Баня на заднем дворе (комната отдыха, помывочная, парная) - Видеонаблюдение и сигнализация

Дом продается с мебелью и техникой - Навес и гараж для двух автомобилей - Мангальная зона на заднем дворе - Асфальтированная дорога до дома - Прямой и быстрый выезд на трассу - В пешей доступности лес, озёра, в том числе Белое озеро с благоустроенным пляжем - ЖД станция в 13 минутах ходьбы - от ЖД станции до Минска можно добраться на электричке или маршрутке за 30 минут
Идеально подходит для постоянного проживания, как загородный дом или дача - подойдёт для долгосрочной или посуточный сдачи

Продает собственник. Показы по согласованию в удобное для вас время. Дополнительные вопросы в личные сообщения, по телефону или почте.
Агентства просьба не беспокоить
Торг уместен, рассмотрим ваши предложения по цене

МарияСобственник
6 месяцев на сайте
Показать почту
Пожаловаться на объявление

Местоположение

Минская область, аг. Петришки, ул. Цветочная,
Опубликовано: 05.11.2025

Похожие объекты

На этой улице
719 295 р.
аг. Петришки, ул. Цветочная
250
145
14 м2
19.42 соток