Подать БЕСПЛАТНО

Продажа 2-этажного коттеджа в Петришках, Минская область ул. Цветочная, 259000USD, код 655752

Минская область, аг. Петришки, ул. Цветочная
Показать на карте
Молодечненское направление
20 км от МКАД
779 279 р.
Код объекта: 655752
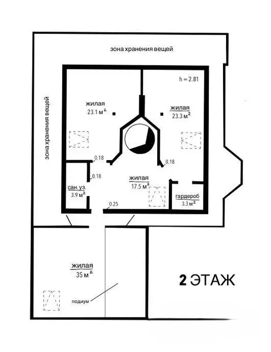
250 м2
19.42 соток
Обновлено: 19.12.2025
779 279 р.
Предложить свою цену

О доме

Площадь общая
250 м2
Площадь дома
250 м2
Участок
19.42 соток
В продаже
Целый дом
Готовность дома, %
100
Год постройки
2012
Материал стен
Кирпич

Коммуникации

Водоснабжение: Центральное
Газ: В доме
Электричество: Есть
Канализация: Есть

Описание

Этот дом согреет вас своим теплом!

Современный коттедж со всеми удобствами в пригороде Минска (агрогородок Петришки, ул. Цветочная)!
+ 2-этажный дом из красного кирпича дом

+ центральные: вода, канализация, газ

+ дом оштукатурен, толщина стен 70 см (утеплитель PAROC)

 + частная собственность

+ установлены утеплённые стеклопакеты

+ потолки 3,1 м

+ современная техника, мебель

+ джакузи

+  стены - декоративная штукатурка

+ тёплый пол

+ котёл Вайлент 24 кВт

 + гараж со смотровой бетонированной ямой

+ баня на заднем дворе (комната отдыха, помывочная, парная) + видеонаблюдение и сигнализация

+ навес и гараж для двух автомобилей

+ мангальная зона на заднем дворе

+ асфальтированная дорога до дома

 + в пешей доступности лес, озёра, в том числе Белое озеро с благоустроенным пляжем

+ ЖД станция в 13 минутах ходьбы, от ЖД станции до Минска можно добраться на электричке или маршрутке за 30 минут

+ хорошо развитая инфраструктура: магазины, сад, школа, аптеки, банк, амбулатория и тп.

Возможна покупка в кредит!

Не упустите возможность стать владельцем этого уникального дома!
Звоните прямо сейчас, чтобы узнать больше и договориться о просмотре!
Поможем продать вашу недвижимость для покупки этой.
ООО «ЭТАЖИ юнайтед»
УНП: 193673318
Договор 2760/1 от 17.12.2025
Лицензия на оказание риэлтерских услуг №02240/460 МЮ РБ от 03.04.2023

АндрейАгент
2 года на сайте
Показать почту
Пожаловаться на объявление
Агентство недвижимости
ООО «ЭТАЖИ юнайтед»

Местоположение

Минская область, аг. Петришки, ул. Цветочная
Опубликовано: 19.12.2025