О квартире
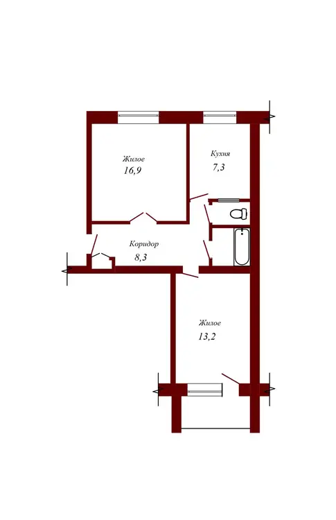
Площадь
49.2 м2
общая
30.3 м2
жилая
7.3 м2
кухня
Санузел
раздельный
Балкон
Лоджия
О доме
Этаж
3 из 5
Материал стен
Кирпичный
Год постройки
1974
Описание
Галина — Агент
5 лет на сайте
Условия сделки:Чистая продажа
Показать почту
Пожаловаться на объявление
Агентство недвижимости
Юриэлт, филиал г. Пинск
УНП: 101214439 Лицензия: от 17.02.2005 № 40
Договор №: #64/8 от 15.04.2025


























