Выберите валюту для сайта:
BYN
Подать БЕСПЛАТНО

Продажа торгового помещения в Пинске, 400000USD, код 993079

655.1 м2
1 158 280 р.
Торговый объект
Город Пинск
Адрес Пинск
Площадь 655.1 м2

Описание

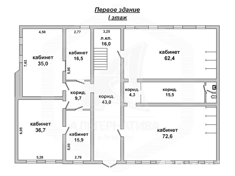
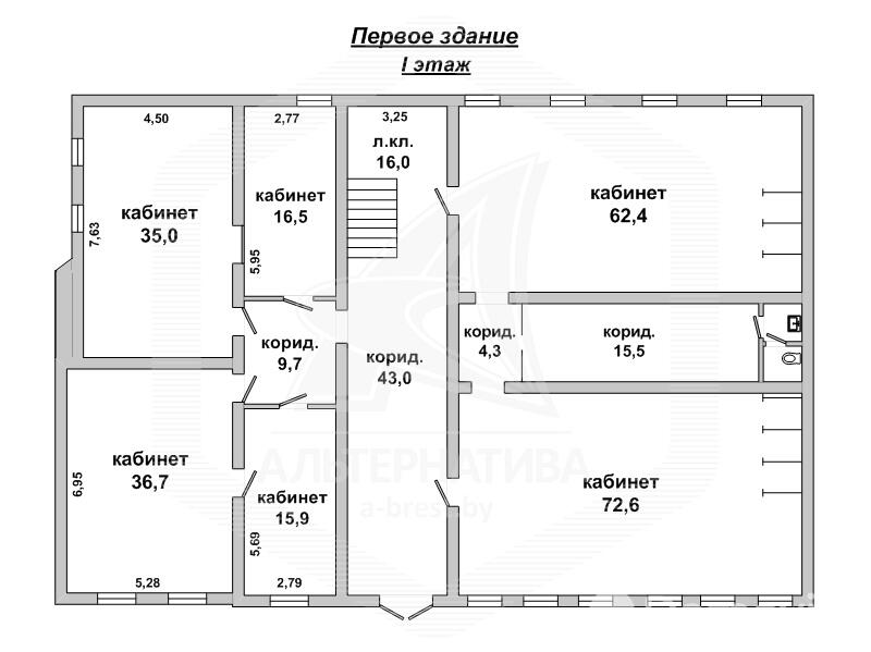
Административно - торговое здание в самом центре города Пинска Брестской области общей площадью 655,1 кв.м. Отдельно стоящее двухэтажное капитальное строение 2016 года реконструкции. 1 этаж: 6 кабинетов разной площади (72,6 + 62,4 + 16,5 + 35 + 36,7 + 15,9 кв.м), коридор, отдельный санузел. Высота потолков - 2,94 м. 2 этаж: 13 кабинетов разной площади (36,7 + 18,6 + 24,5 + 25,6 + 24 + 25,4 + 14,6 + 18,9 + 14,9 + 16,2 + 17,3 + 22,1 + 10,2 кв.м), коридор, отдельный санузел. Технические характеристики здания: фундамент бутовый ленточный, полы - плитка, стены кирпичные, перекрытия ж/бетонное, крыша фальцевая с полимерным покрытием, окна, двери - ПВХ. Все центральные коммуникации (электричество, водоснабжение, канализация), собственная газовая котельная. Доля земельного участка предоставлена собственнику в долгосрочную аренду (до 02.12.2043 года) для обслуживания здания. Здание сдано в аренду, приносит стабильный доход и рассматривается как продажа действующего бизнеса по сдаче в аренду помещений. Лот - 181221. Смотреть подробнее.

Здесь можно подписаться на рассылку новых предложений и снижения цен по КОММЕРЧЕСКОЙ НЕДВИЖИМОСТИ в Брестском регионе прямо Вам в Viber или Telegram ЗАО «АЛЬТЕРНАТИВА Брест». УНП 291427570 Лицензия № 02240/303 от 02.02.2016г. Договор номер 1221/1 от 21.05.2018
Код объекта: 993079 Договор с собственником: 21.05.2018 №1221/1 Опубликовано: 08.07.2020 Обновлено: 27.11.2025
0 / 0 / 13
Динамика цен за кв. метрДинамика цен

Вы просматривали

170 846 р. 1 812 р. за м2
Московский р-н
Торговый объект, 655.1 м2
Пинск
1 158 280 р.
1 768 р. за м2
Ярмоцик Андрей Петрович
Пожалуйста, скажите, что нашли этот объект на Domovita.by
+
Фильтр сохранен