Выберите валюту для сайта:
BYN
Подать БЕСПЛАТНО
Объект в архиве
К результатам поиска

Купить офис на ул. Войкова в Полоцке, 250000USD, код 5630

534 м2
Объект в архиве
Уважаемые пользователи, данное объявление больше не актуально. Поэтому мы убрали все контакты продавца.
Продолжить поиск
Офис
Город Полоцк
Адрес ул. Войкова
Год постройки 2016 г.
Площадь 534 м2
Удобства
Телефон

Описание

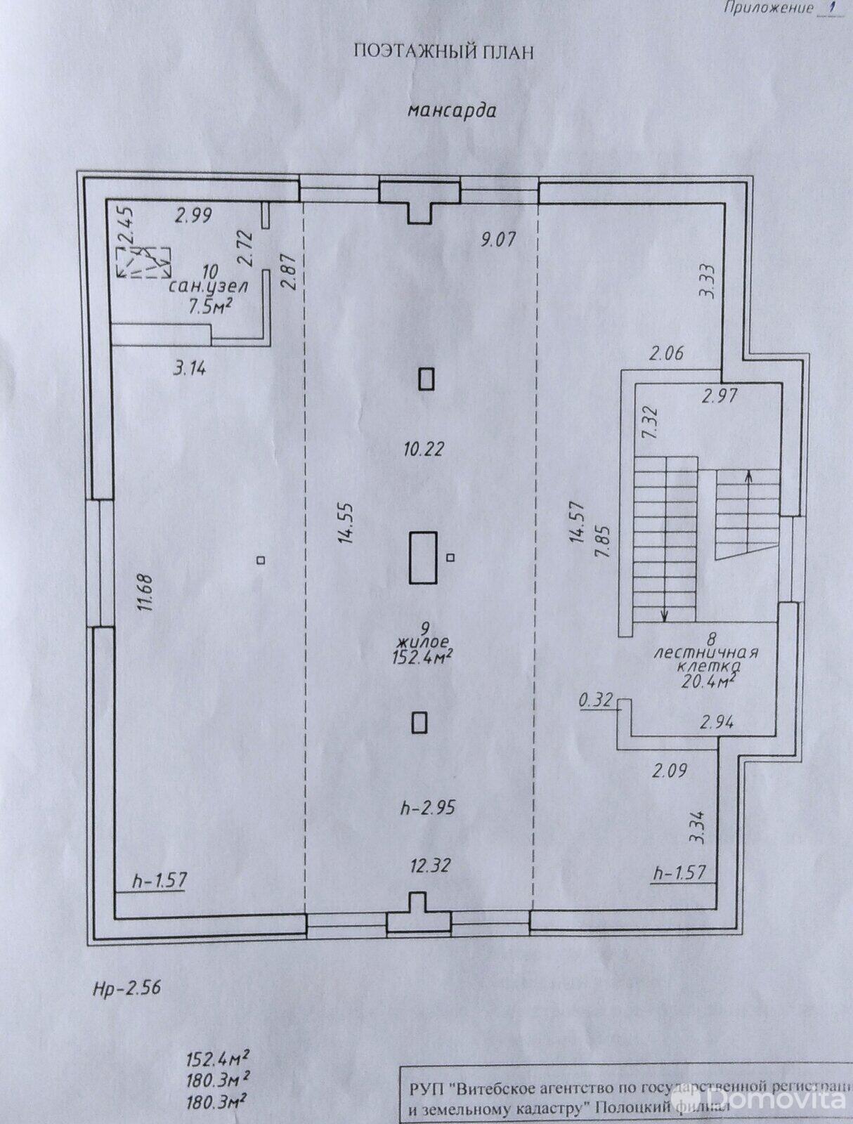
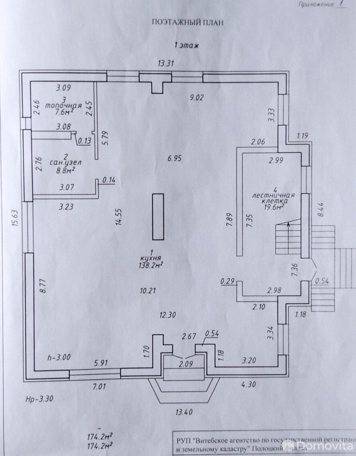
Продаётся трёхэтажное здание-коттедж общей площадью 534 м2, 2016 года постройки, в самом центре города Полоцка.

   Идеально подойдёт под филиал любого Банка, медицинский центр (стоматология и другого медицинского назначения), мини-ресторан, кафе, суши Шоп-бар, магазин, центр спортивного или любого другого применения.

   В непосредственной близости вся центральная инфраструктура города. Вход и въезд на территорию непосредственно с улицы Войкова. Рядом остановка автобусов и маршрутных такси.

  На первом этаже умышленно не завершена внутренняя отделка, так как каждый сможет подстроиться под необходимые требования и технические условия для своего направления и применения здания.

  Всё здание построено из современных строительных материалов. Газовое отопление, центральная канализация, кровля из гибкой черепицы. На каждом этаже имеются оборудованные санитарные узлы. Есть интернет, телефонизация. Прилегающая территория 5 соток обнесена высоким забором из метало-профиля и кирпичных декоративных столбов на фундаменте. Удобные и широкие въездные раздвижные ворота. Придомовая территория обложена декоративным камнем.

 Возможна продажа по кредиту банка, с привлечением средств семейного капитала. Звоните, покажем. Торг.

Код объекта: 5630 Договор с собственником: 81/1 от 2023-03-14 Опубликовано: 18.03.2023 Обновлено: 04.12.2025
Динамика цен за кв. метрДинамика цен

Вы просматривали

+
Фильтр сохранен