Подать БЕСПЛАТНО

ОБЪЕКТ В АРХИВЕ

Продажа 1-этажного дома в Радошковичах, Минская область ул. Полоцкая, 24900USD, код 651411

Минская область, гп. Радошковичи, ул. Полоцкая
Показать на карте
Молодечненское направление
32.71 км от МКАД
-3 р.
Код объекта: 651411
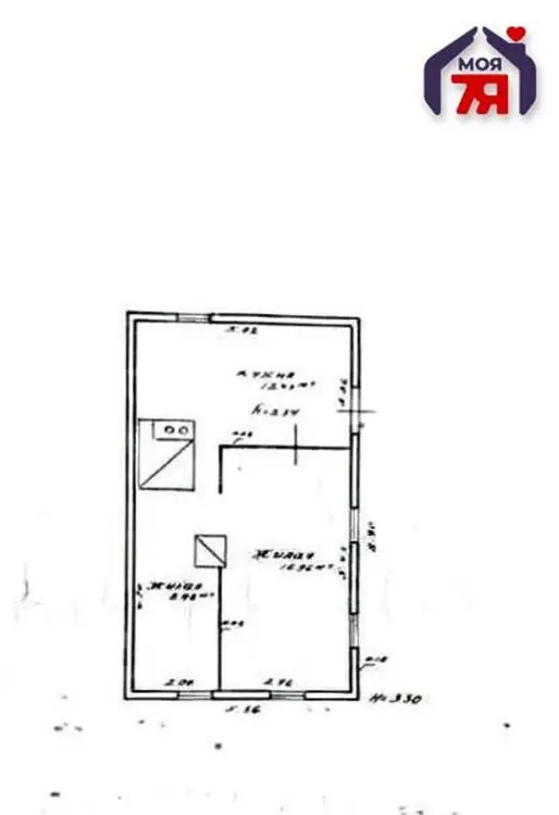
38 м2
25 соток
Обновлено: 15.07.2025
-3 р.
Предложить свою цену

О доме

Площадь общая
38 м2
Площадь дома
38 м2
Участок
25 соток
В продаже
Целый дом
Готовность дома, %
100
Год постройки
1962
Материал стен
дерево
Материал крыши
Шифер

Удобства

Лес
Водоем

Коммуникации

Отопление: печное
Водоснабжение: Колодец
Электричество: Есть

Описание

Дом с участком 25 соток в 30 км. от Минска

❤️Продаётся бревенчатый дом в Радошковичах с большим и ухоженным участком 25 соток - отличный вариант для жизни и отдыха!

Адрес: гп. Радошковичи, ул. Полоцкая

-Одноуровневый дом 1962 года постройки, крепкий и надёжный, с шиферной крышей, общей площадью 38 м² и жилой - 21 м².

-Отопление печное, создающее особый уют в любое время года. По улице уже проведён газ, есть возможность легко подключить его к дому и повысить комфорт. Водоснабжение - колодец.

-Участок ровный и просторный - 25 соток, идеально подходит для воплощения любых идей: сад, огород, ландшафтный дизайн, зона отдыха. На участке уже высажены плодовые деревья, которые порадуют вас собственным урожаем и зелёным уютом.

-В дому ведут удобные подъездные пути.

-Радашковичи - развитый посёлок городского типа вблизи Минска с насыщенной инфраструктурой. Всего в нескольких минутах пешком от дома находятся магазины, супермаркеты, отделения банков и банкоматы, аптеки, почта, что позволит решать все повседневные вопросы без лишних поездок.

-Для семей с детьми рядом расположены детский сад и средняя школа. Поблизости - поликлиника, больница.

-Транспортное сообщение очень удобное: регулярные автобусы, маршрутки и электрички связывают Радашковичи с Минском и соседними населёнными пунктами. До столицы - примерно 30 минут на автомобиле по удобной трассе, что даёт возможность совмещать комфортную жизнь на природе с быстрым доступом к городским услугам и работе.

-Посёлок славится зелёными зонами и чистым воздухом: неподалёку - лесополосы, красивые поля и небольшие речки, которые идеально подходят для прогулок, отдыха и сбора грибов и ягод. Для любителей активного досуга в Радашковичах есть спортивная школа и стадион.

❤️Это отличный вариант для тех, кто ценит спокойствие, зелёное окружение и развитую инфраструктуру в шаговой доступности!

❤️ Мы с радостью покажем Вам данный объект и сделаем Вас его счастливыми хозяевами!

А также хотите:

- выгодно продать

- срочно выкупить

- найти лучшую квартиру

- заработать на инвестициях в недвижимость

- сделать дизайнерский ремонт

Тогда «Моя 7Я» решит это, как для своей семьи: с любовью, заботой и желаемым результатом!

Агентство недвижимости ООО «Центр международной недвижимости Моя 7Я»

УНП 193750826

Лицензия: № 02240/484 выдана МЮ РБ 18.05.2024 г.

Страховое свидетельство БР 0004913

Агент
год на сайте
Пожаловаться на объявление
Агентство недвижимости
«Центр международной недвижимости Моя 7Я»

Местоположение

Минская область, гп. Радошковичи, ул. Полоцкая
Опубликовано: 15.07.2025

Похожие объекты

На этой улице
368 988 р.
гп. Радошковичи, ул. Полоцкая
160.6
83
м2
19.8 соток