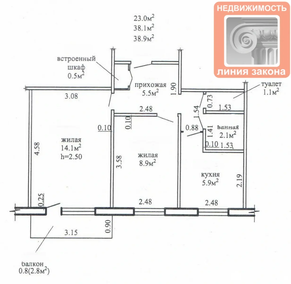
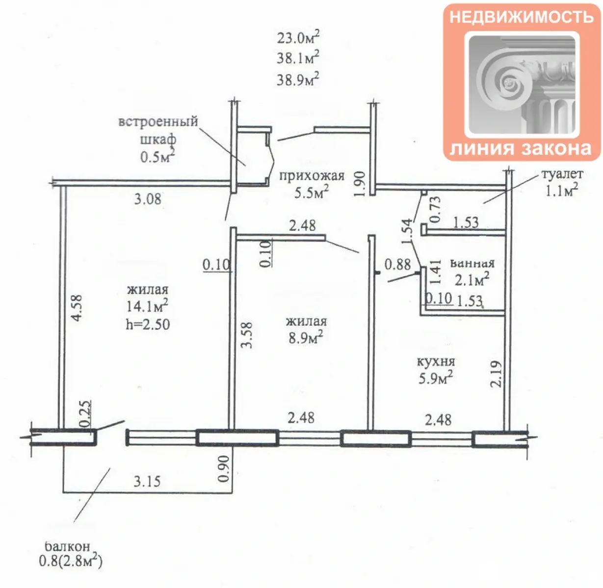
О квартире
Площадь
38.1 м2
общая
23 м2
жилая
5.9 м2
кухня
Отдельных комнат
2 комнаты
Санузел
раздельный
Балкон
Балкон
О доме
Этаж
1 из 5
Год постройки
1972
Описание
Евгений Васильевич — Агент
9 лет на сайте
Условия сделки:Чистая продажа
Показать почту
Пожаловаться на объявление
Агентство недвижимости
Недвижимость линия закона
УНП: 490680213 Лицензия: от 04.04.2008
Договор №: 01.09.2025 №366/1


















