О квартире
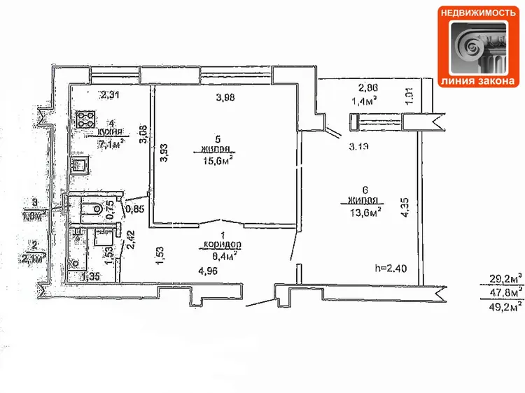
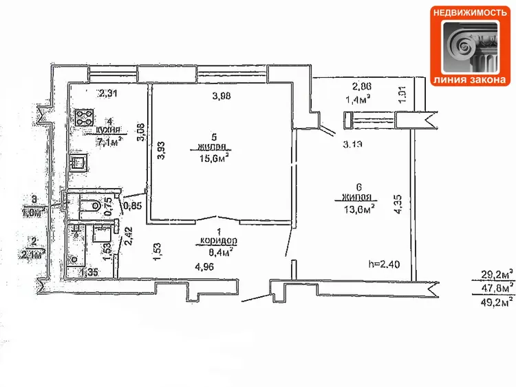
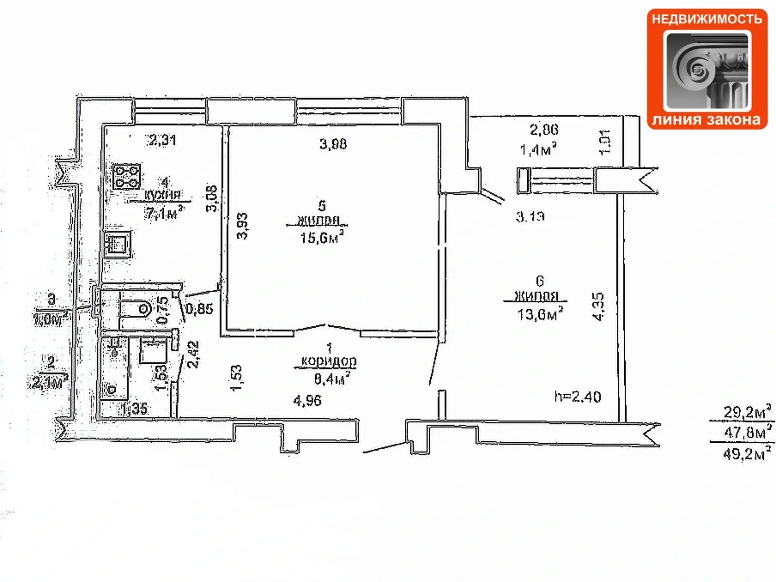
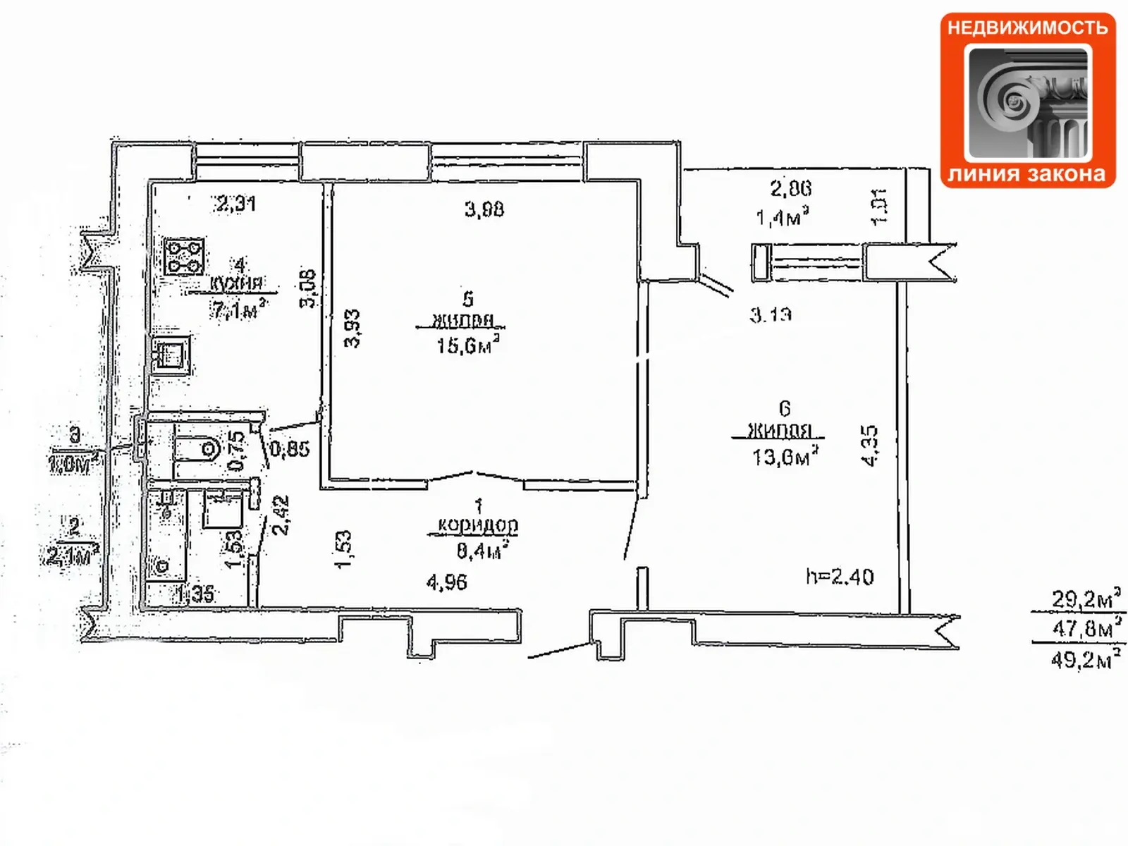
Площадь
47.8 м2
общая
29.2 м2
жилая
7.1 м2
кухня
Отдельных комнат
2 комнаты
Санузел
раздельный
Балкон
Лоджия
Тип ремонта
С ремонтом
О доме
Этаж
1 из 5
Материал стен
Кирпичный
Год постройки
1974
Описание
Елена Сергеевна — Агент
9 лет на сайте
Условия сделки:Чистая продажа
Показать почту
Пожаловаться на объявление
Агентство недвижимости
Недвижимость линия закона
УНП: 490680213 Лицензия: от 04.04.2008
Договор №: 18.11.2025 №25/5


















