Выберите валюту для сайта:
BYN
Подать БЕСПЛАТНО

Продажа 1-этажной дачи в Репортер Минская область, 39700USD, код 183988

51.3 м2
122 165 р.
Дача
Город Репортер
Адрес Репортер
Направление Раковское
Удаленность от МКАД 6 км
Год постройки 1998
  
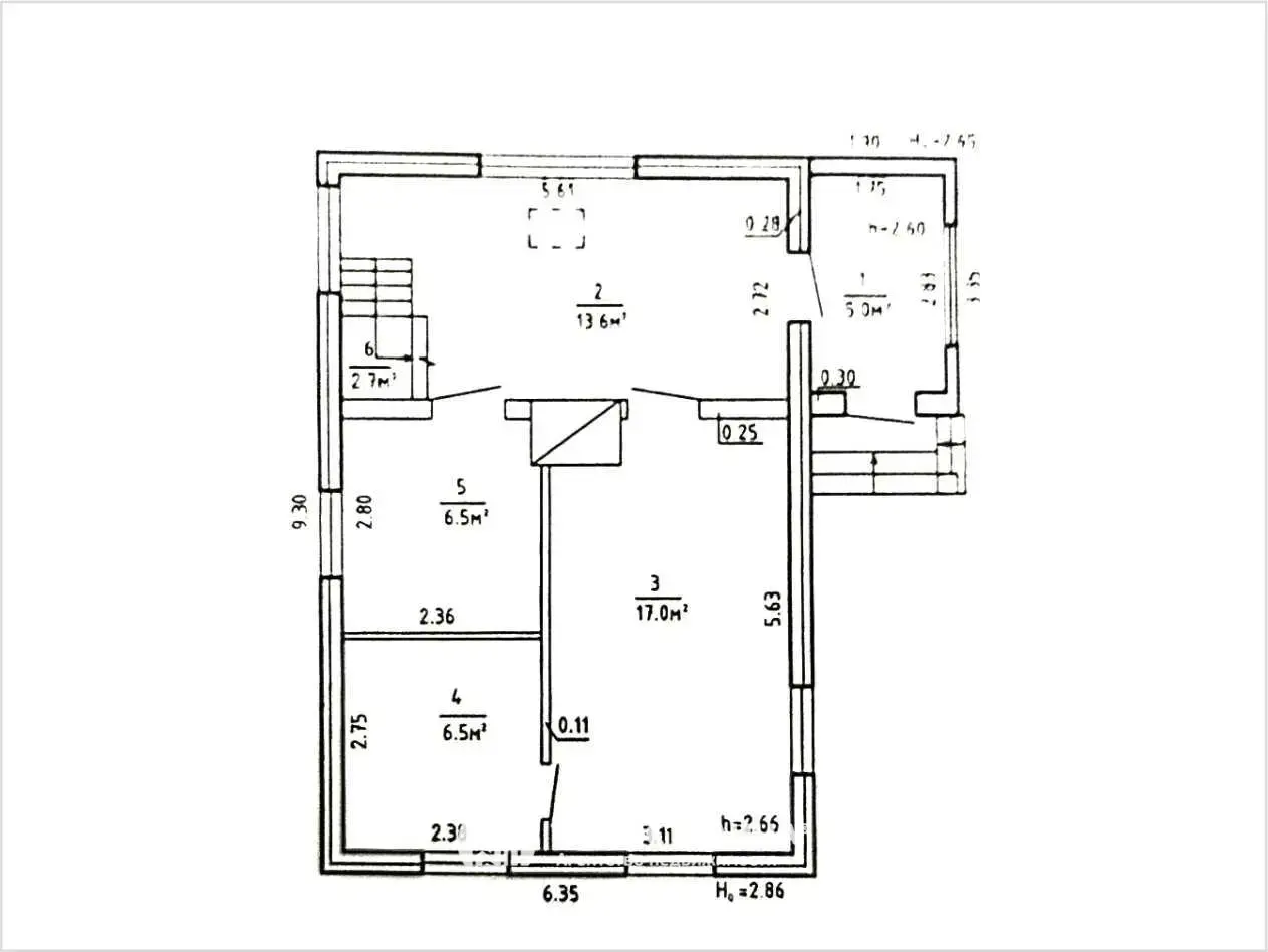
Общая площадь 51.3 м2
Участок 5.80 соток
Площадь дома 51.3 м2
Этажей 1
Материал стен Кирпич

Описание

Уютная капитальная дача в газифицированном товариществе "Репортёр", 6 км от МКАД, семь минут пути на автомобиле. Отличное транспортное сообщение с Минском- автобусы и маршрутки от станции метро Каменная Горка. Комфортные подъездные и пешеходные пути. Въезд в товарищество под шлагбаум. Аккуратный дом с тремя комнатами, кухней и прихожей. Зарегистрирован . Мансардный этаж с окнами под отделку. Лестница в мансарду капитальная. Печь с плитой. Вода введена в дом. Центральный водопровод по улице. Ухоженный участок с ограждением. Частная собственность. Сад. Огород. Хозяйственная постройка. Асфальтированное покрытие улицы. Есть место для организации стояночного места автомобиля. В товариществе проживают круглый год. В пяти минутах езды на велосипеде - поселок Хатежино с объектами инфраструктуры, торговыми предприятиями, мелкооптовый рынок Таборы. Прямая продажа. ООО "Твоя столица", УНП 101136973, лицензия №02240/15 от 17.02.05г.
Код объекта: 183988 Договор с собственником: 18.08.2025 №733/13 Опубликовано: 29.08.2025 Обновлено: 18.11.2025
11 / 20 / 311
Дача, 51.3 м2
Репортер
115 475 р.
Пожалуйста, скажите, что нашли этот объект на Domovita.by
+
Фильтр сохранен