О доме
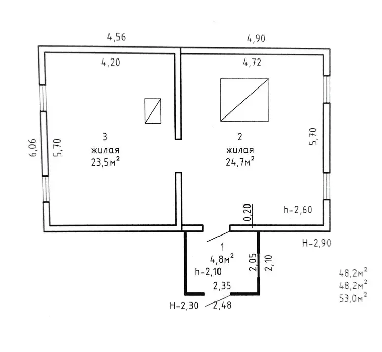
Площадь общая
53 м2
Площадь дома
53 м2
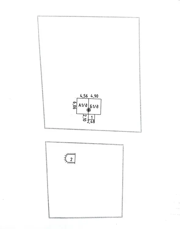
Участок
25 соток
В продаже
Целый дом
Год постройки
1950
Коммуникации
Водоснабжение: Колодец
Электричество: Есть
Описание
Инна Гайдук — Агент
6 лет на сайте
Показать почту
Пожаловаться на объявление
Агентство недвижимости
Алеф Лайф
УНП: 193291493 Лицензия: МЮ РБ, 29.10.2019
Договор №: 63/2 от 2025-11-24








