Подать БЕСПЛАТНО

ОБЪЕКТ В АРХИВЕ

Продажа 1-этажного дома в Росинка-1, Минская область , 49900USD, код 654150

Минская область, ст. Росинка-1,
Показать на карте
Московское направление
43 км от МКАД
148 682 р.
Код объекта: 654150
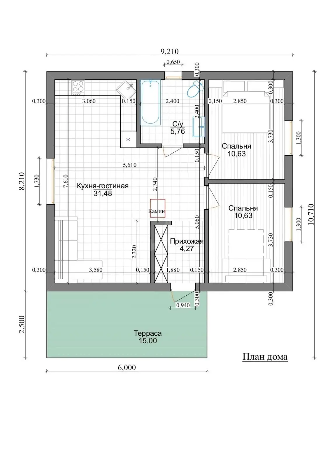
63 м2
8.4 соток
Обновлено: 11.10.2025
148 682 р.
Предложить свою цену

О доме

Площадь общая
63 м2
Площадь дома
63 м2
Участок
8.4 соток
В продаже
Целый дом
Готовность дома, %
100
Год постройки
2025

Коммуникации

Водоснабжение: Колодец
Газ: Нет
Электричество: Есть
Канализация: Есть

Описание

Продаётся дом в С/Т "Росинка-1". Минская обл., Смолевичский р-н., Жодинский с/с.

Новая дача с ремонтом 2025 года, никто не жил.
Московское направление, от Минска 40 км (30 минут езды на автомобиле) от Жодино 11 км (от Смолевич 12 км), налажено транспортное сообщение.
Участок расположен на возвышенности, в живописном месте (рядом лес), хорошие подъездные пути, по улице располагаются "молодые" новостройки.
Сам участок - 8,4 сот (правильной, прямоугольной формы, ровный, выполнено озеленение), дом - общей площадью 63 м2 + терасса - 14 м2.
Дом построен из газосиликатных блоков (год постройки 2025), утеплён, оштукатурен, покрашен. Вставлены двойные стеклопакеты, крыша - металлочерепица "Трамонтана" 0,5 мм.
В самом доме разведена электрика, сантехника, выполнена чистовая стяжка, стены оштукатурены, ошпаклеванные (подготовлены под оклейку обоями). В гостиной, коридоре, кухне - нанесено декоративное покрытие "Американка" (стены окрашены).
Потолок зашит деревом" имитация бруса" (окрашен).
Установлена (Польская) чугунная печь-камин (7 кВт), со способностью отапливания до 70 м2.
Канализация местная, скважина на участке - 34 м., заведена в дом (в кессоне выполнены все необходимые работы, для дальнейшего водоснабжения).
В санузле проложен кабель тёплого пола, куплен унитаз, умывальник, тумба и зеркало.

 

 

Площадь указана по СНБ.

 

Работаем с различными видами кредитования:

- Система строительных сбережений от Беларусбанка;

-Семейный капитал;

-Ипотечное кредитование и все виды кредитования на покупку недвижимости.

А также:   

-Подыщем выгодный для Вас банк;

-Поможем продать вашу недвижимость для покупки этой.

 

Напишите нам в удобный для Вас мессенджер:

Viber | Telegram | WhatsApp

Ответим на Ваши вопросы, предоставим всю необходимую информацию.

 

ООО «Артель Недвижимость»

УНП 193820882

Лицензия Министерства Юстиции №48250000081913 от 06.03.2025 г.

Договор № 386/2 от 10.10.2025

Недвижимостьагент
11 месяцев на сайте
Показать почту
Пожаловаться на объявление
Агентство недвижимости
ООО "Гарант Недвижимость"

Местоположение

Минская область, ст. Росинка-1,
Опубликовано: 11.10.2025