Выберите валюту для сайта:
BYN
Подать БЕСПЛАТНО

Продажа 1-этажной дачи в Росинка при Брестском ДЭУ-138 Брестская область, 169000USD, код 184897

112.7 м2
Дача
Адрес Росинка при Брестском ДЭУ-138
Год постройки 2016
  
Общая площадь 112.7 м2
Участок 9.42 соток
Площадь дома 112.7 м2
Этажей 1
Материал стен Блоки
Отделка С ремонтом
Тип отопления Газовое
Водоснабжение Центральное

Описание

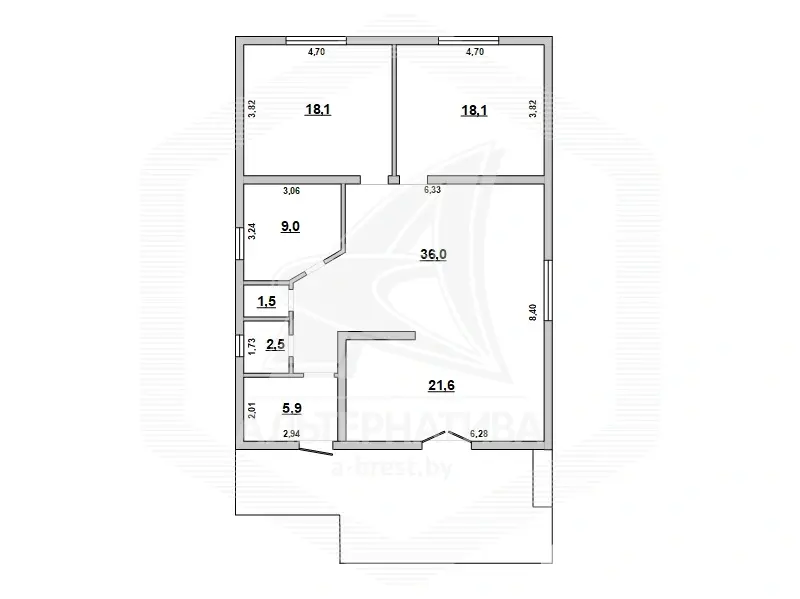
Дачный дом жилого типа в Брестском р-не. 2016 г.п. 1 этаж. Общ.СНБ - 136,0 кв.м, общ.- 112,7 кв.м, жил.- 72,2 кв.м, кух.- 21,6 кв.м. 3 комнаты. Стены: материал - газосиликатный блок; утепление - пенополистирол (пенопласт); отделка фасада - декоративная штукатурка. Кровля: мягкая битумная черепица. Фундамент: ленточный монолитный; материал - бетон; подушка - бетонная. Коммуникации: отопление - газовый котел, газ - централизованный (в доме), водоснабжение - централизованный водопровод и скважина, электричество - централизованное, канализация - автономная. Хоз.постройки: детская площадка, зона барбекю, автополив, охранная система. Участок - 0,0942 га. Лот - 260178. Смотреть подробнее.

Здесь можно подписаться на рассылку новых предложений и снижения цен по ДАЧАМ и УЧАСТКАМ в Брестском регионе прямо Вам в Viber или Telegram ЗАО «АЛЬТЕРНАТИВА Брест». УНП 291427570 Лицензия № 02240/303 от 02.02.2016г. Договор номер 178/1 от 10.02.2026
Код объекта: 184897 Договор с собственником: 10.02.2026 №178/1 Опубликовано: 11.02.2026 Обновлено: 11.02.2026
1 / 0 / 0
Дача, 112.7 м2
Росинка при Брестском ДЭУ-138
484 084 р.
Усюкевич Денис Владимирович
Пожалуйста, скажите, что нашли этот объект на Domovita.by
+
Фильтр сохранен