Продажа 1-этажной дачи в Росинка при Брестском ДЭУ-138 Брестская область, 26900USD, код 185484

33 м2
Дача
Адрес Росинка при Брестском ДЭУ-138
Год постройки 1987
  
Общая площадь 33 м2
Участок 4.99 соток
Площадь дома 33 м2
Этажей 1
Материал стен Кирпич
Тип отопления Печное
Водоснабжение Скважина

Описание

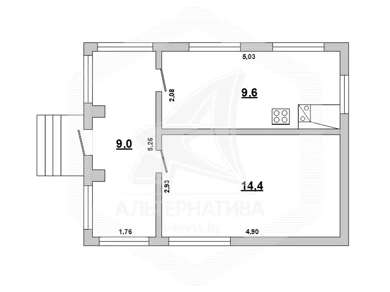
Садовый домик в Брестском р-не. 1987 г.п. 1 этаж. Общ.- 33,0 кв.м. 1 комната. Стены: материал - силикатный кирпич; отделка фасада - оштукатурен, окрашен. Кровля: шифер. Фундамент: ленточный монолитный; материал - бетон; подушка - песчано-гравийная. Коммуникации: отопление - печь, газ - централизованный (по улице, взносы не оплачены), водоснабжение - скважина и гидрофор, электричество - централизованное. Хоз.постройки: баня. Участок - 0,0499 га. Лот - 260540. Смотреть подробнее.

Здесь можно подписаться на рассылку новых предложений и снижения цен по ДАЧАМ и УЧАСТКАМ в Брестском регионе прямо Вам в Viber или Telegram ЗАО «АЛЬТЕРНАТИВА Брест». УНП 291427570 Лицензия № 02240/303 от 02.02.2016г. Договор номер 540/1 от 10.04.2026
Код объекта: 185484 Договор с собственником: 10.04.2026 №540/1 Опубликовано: 11.04.2026 Обновлено: 11.04.2026
0 / 1 / 1
Дача, 33 м2
Росинка при Брестском ДЭУ-138
76 434 р.
Усюкевич Денис Владимирович
Пожалуйста, скажите, что нашли этот объект на Domovita.by
+
Фильтр сохранен