О доме
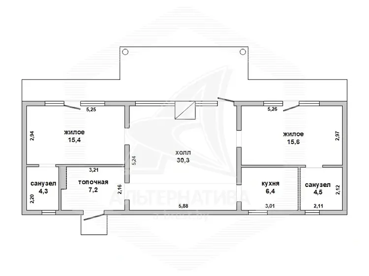
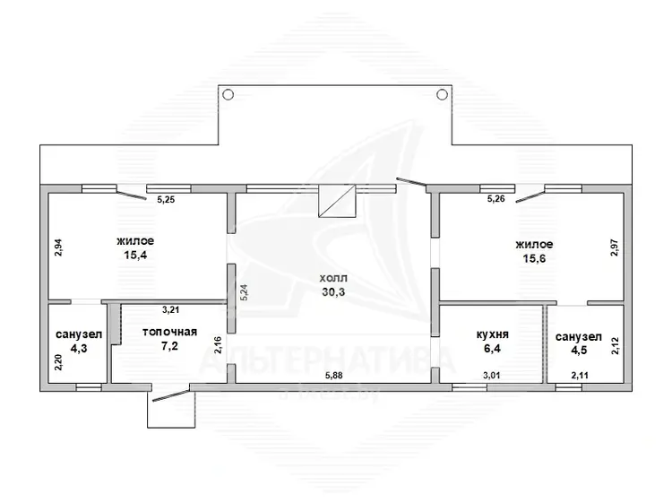
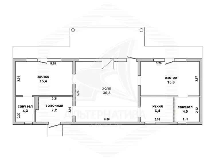
Площадь общая
83.7 м2
Площадь дома
83.7 м2
Участок
9.26 соток
В продаже
Целый дом
Год постройки
2019
Материал крыши
Металлочерепица
Коммуникации
Водоснабжение: Скважина
Газ: -
Электричество: Есть
Описание
Царук Сергей Васильевич — агент
9 лет на сайте
Показать почту
Пожаловаться на объявление
Агентство недвижимости
АЛЬТЕРНАТИВА Брест
УНП: 291427570 Лицензия: от 02.02.2016 № 21
Договор №: 09.09.2023 №2865/1












