О квартире
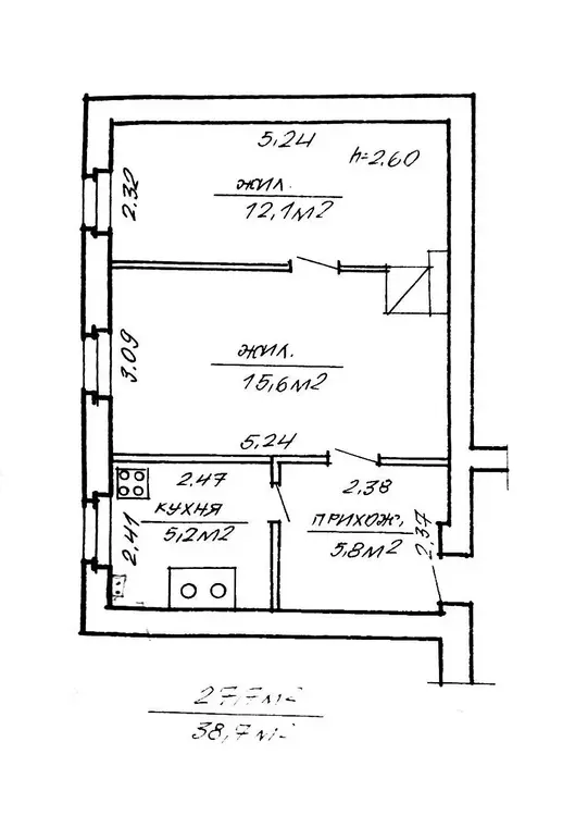
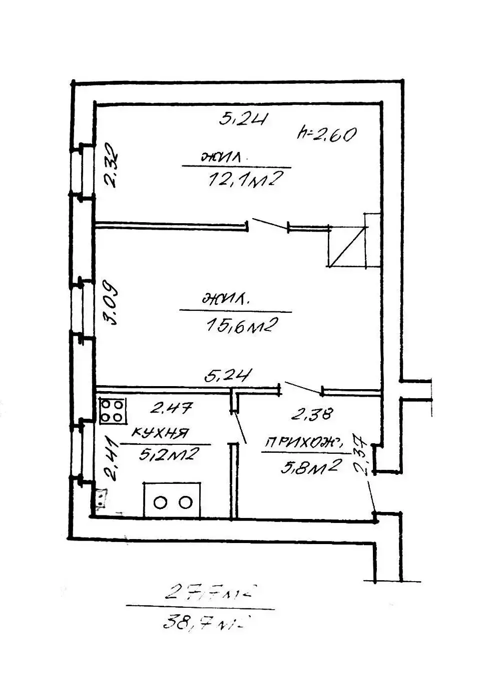
Площадь
38.7 м2
общая
27.7 м2
жилая
5.2 м2
кухня
О доме
Этаж
1 из 2
Материал стен
Кирпичный
Год постройки
1982
Описание
Фаттория Плюс — Агент
7 лет на сайте
Условия сделки:продажа
Показать почту
Пожаловаться на объявление
Агентство недвижимости
Фаттория Плюс
УНП: 193074485 Лицензия: от 31.07.2018 № 159
Договор №: 462/1 от 2026-04-13





