О доме
Коммуникации
Описание
Концепция дома – стильная альтернатива тесной квартире с кучей соседей и отсутствием парковки.
Дом выполнен в стиле A-frame – идеален для жизни, отдыха или инвестиций с последующей сдачей в субаренду.
Адрес: д. Силичи, ул. Волгоградская, д. 18
Район: Логойский
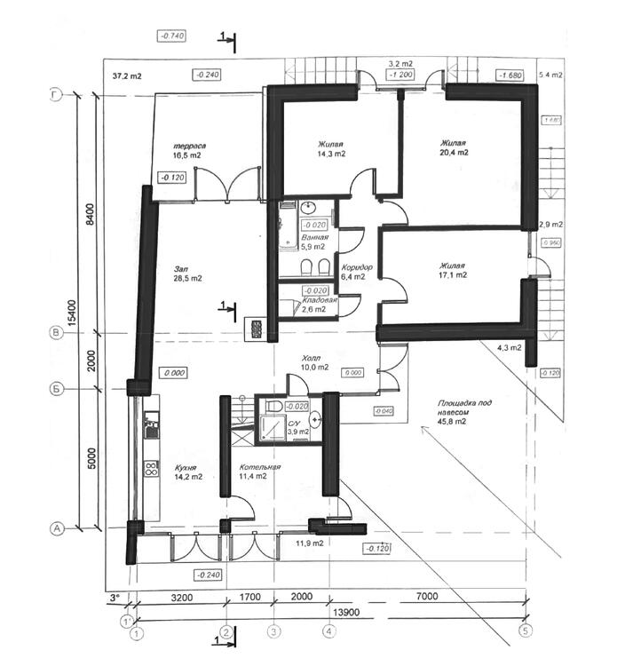
Дом двухуровневый
Материал дома: фундамент – цельная железобетонная плита 400 мм, перекрытия и лестница на второй этаж – монолит, стены и перегородки – кирпич, выполнено утепление стен 100 мм, кровля - металлопрофиль, толщиной 0.6 мм, остекление премиум качества, практически в каждой комнате установлены окна в пол с возможностью выхода на улицу. Дом построен под контролем одних из лучших специалистов технического надзора.
Количество комнат 4,в том числе раздельных 3
Метраж дома: 296.5 общ. жил.80.3 кухня-зал 14.2м2
Год постройки 2023, степень готовности – 75%
Участок: 10 соток в частной собственности. Выровнен и правильной формы.
Коммуникации: электричество 380 В, газ рядом, центральное водоснабжение, оптоволокно – всё у границы участка.Имеется подсветка по всему периметру дома. Выполнена разводка труб под приточную вентиляцию. Имеется вывод для камина.
Выполнено грамотное зонирование.
Кухня: 14.2 м2. Зона готовки с остеклением по всему периметру, что позволит в процессе приготовления пищи наслаждаться шикарными видами, а также имеется остекление в пол с возможностью выхода во двор.
Зал: 28.5 м, Ваше уютное пространство для сбора гостей и обсуждения планов на будущее. Расположен сразу около кухни и имеет выход на террасу заднего двора.
Жилые комнаты:
14.3 м2, 20.4 м2, 17.2м2 правильной формы, позволят разместить просторную детскую, спальню и рабочее пространство. Комфортно будет каждому члену семьи!
Сан.узлы: 5.9 м2 и 3.9 м2, спроектировано два просторных санузла для удобства проживающих и гостей.
Котельная и кладовая: два отдельных пространства площадью 11.4 м2 и 2.6 м2 соответственно, что позволит комфортно разместить все коммуникации и личные вещи.
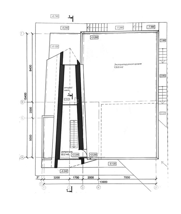
Второй этаж: уникальное пространство второго этажа в 22.2 м2 позволит сделать уютное место для отдыха, мини спальню или кабинет.
БОНУСЫ: на втором этаже имеется выход на эксплуатируемую кровлю. 139.6 м2 с видом на горнолыжный курорт «Силичи» и сосновый лес в Вашем распоряжении. Идеальное место для приема солнечных ванн, отдыха и уютных посиделок.
На первом этаже можно спокойно расположить две террасы: при выходе из зала на задний двор, например, для барбекю зоны, и при входе в дом (кстати данное пространство может стать навесом для вашего транспорта, можно разместить 2 машины).
Инфраструктура и удобства: в 4-х км от дома расположен горнолыжный курорт «Силичи», который поможет организовать круглогодичный досуг всем членам семьи. На соседней улице расположен продуктовый магазин и н
Подъездные пути и транспорт: 30 км от Минска по трассе со скоростью 110км/ч-120км/ч. Зимой чистятся все подъездные дороги, удобные подъездные пути.
Помимо доступа машиной ходят рейсовые маршрутки с остановками в Силичах. Такси и доставки спокойно заезжают в нашу деревню.
Резюме: если думали, что жизнь за городом не может быть как на картинках – приезжайте и насладитесь сами.

















