Выберите валюту для сайта:
BYN
Подать БЕСПЛАТНО

Продажа 1-этажной дачи в Силичах Минская область, 42000USD, код 185060

73.7 м2
Дача
Город Силичи
Адрес Силичи
Направление Логойское
Удаленность от МКАД 24 км
Год постройки 2000
  
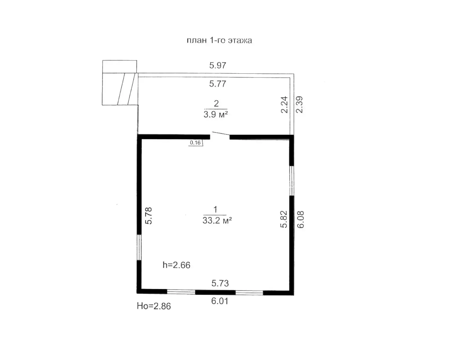
Общая площадь 73.7 м2
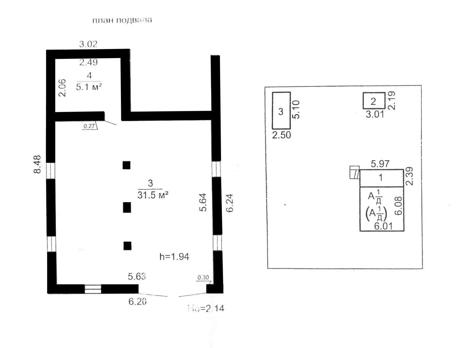
Участок 5.40 соток
Площадь дома 73.7 м2
Этажей 1
Материал стен сруб

Описание

Продается уютная дача в живописном месте около Логойска – идеальное место для загородного отдыха!

Расположенная всего в 24 км от МКАД по Логойскому направлению, эта дача предлагает комфорт и уединение в окружении природы.

Общая площадь дома составляет 73.7 кв.м, где расположены 3 просторные комнаты, созданные для вашего удобства. Дом, построенный в 2000 году, выполнен из экологичного сруба, что обеспечивает прохладу летом и тепло зимой, крыша покрыта металлопрофилем – надежно и долговечно.

Участок в 5.4 соток ухожен, имеется плодоносящий сад, где можно наслаждаться свежими фруктами и ягодами. В доме проведена холодная вода, местная канализация, а уютное печное отопление (печь, камин) создаст неповторимую атмосферу в прохладные вечера. Электричество 220В подключено.

Для вашего удобства предусмотрен гараж и стояночное место, а также остается мебель. Особое преимущество – уникальное расположение: рядом лес и водоём, что делает это место по-настоящему живописным и идеальным для прогулок, рыбалки и сбора грибов.

Не упустите возможность купить дачу своей мечты в садовом товариществе СЕКУНДА МЧЗ! Отличный вариант для сезонного отдыха. Звоните прямо сейчас!

ООО "Твоя столица", УНП 101136973, лицензия №02240/15 от 17.02.05г.
Код объекта: 185060 Договор с собственником: 18.02.2026 №32/1 Опубликовано: 10.03.2026 Обновлено: 10.03.2026
4 / 0 / 0
Дача, 73.7 м2
Силичи
122 888 р.
Пожалуйста, скажите, что нашли этот объект на Domovita.by
+
Фильтр сохранен