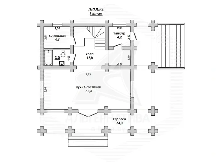
О доме
Площадь общая
115.8 м2
Площадь дома
115.8 м2
Участок
15.07 соток
В продаже
Целый дом
Материал стен
Дерево
Материал крыши
-
Коммуникации
Газ: В поселке
Электричество: Есть
Описание
Жук Татьяна Ивановна — Агент
9 лет на сайте
Показать почту
Пожаловаться на объявление
Агентство недвижимости
АЛЬТЕРНАТИВА Брест
УНП: 291427570 Лицензия: от 02.02.2016 № 21
Договор №: 02.05.2025 №878/1





