Выберите валюту для сайта:
BYN
Подать БЕСПЛАТНО

Продажа 2-этажной дачи в Сокол Минская область, 45000USD, код 184007

91.1 м2
146 660 р.
Дача
Город Сокол
Адрес Сокол,
Направление Могилевское
Год постройки 1999
  
Общая площадь 91.1 м2
Участок 10.06 соток
Площадь дома 91.1 м2
Комнат 4
Этажей 2
Материал стен Кирпич
Отделка Косметический
Тип отопления Печное
Водоснабжение Центральное
Канализация 1

Описание

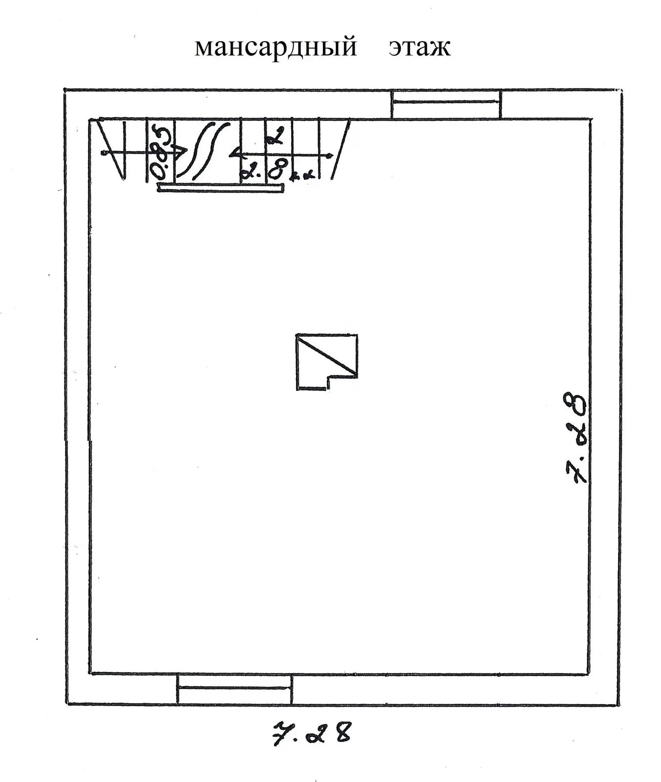
Дом расположен в шаговой доступности от реки Волма и Петровичского водохранилища, рядом лес. Построен в 1999 году из блоков, обложенных кирпичом и оштукатурен изнутри с подвалом и мансардным этажом площадью 91.1 кв.м. по техническому паспорту плюс ещё площадь пристроенной веранды и мансардного этажа, которые не вошли в эти 91,1 кв.м. Перекрытия между подвалом и первым этажом – бетонные, а между первым и вторым – деревянные. Крыша из оцинкованной жести. Полы деревянные и ДВП. Окна – стеклопакеты. Отопление печное, газовая плита с баллоном, вода центральная (сезонная), бойлер для нагрева воды в подвале, душевая кабина на веранде, туалет на улице, электричество 220 В. На первом этаже прихожая, кухня и две комнаты, выходы в подвал и на мансардный этаж, печь. На мансардном этаже большая комната с двумя окнами. Участок ровный 10,06 соток в частной собственности, полностью облагорожен, забор по периметру. Плодовые деревья и кустарники, теплица, беседка, качели, газонная трава, баня с сараем, грядки, много цветов. Хорошие подъездные пути, широкие проезды, въезд в товарищество осуществляется через автоматические распашные ворота, территория находится под видеонаблюдением.
Код объекта: 184007 Договор с собственником: #170/2 от 29.09.2025 Опубликовано: 01.09.2025 Обновлено: 14.03.2026
23 / 62 / 1307
Дача, 91.1 м2
Сокол
131 994 р.
Вариант
Пожалуйста, скажите, что нашли этот объект на Domovita.by
+
Фильтр сохранен