Выберите валюту для сайта:
BYN
Подать БЕСПЛАТНО

Продажа 2-этажной дачи в Сокол Минская область, 99000USD, код 184265

156 м2
300 227 р.
Дача
Город Сокол
Адрес Сокол,
Направление Могилевское
Удаленность от МКАД 22.6 км
  
Общая площадь 156 м2
Участок 10.00 соток
Площадь дома 156 м2
Этажей 2
Водоснабжение Сезонное
Канализация Есть
Удобства
Лес
Водоем

Описание

Вы ищете отличное место для отдыха с новым современным домом? Тогда Вам к нам!

Между рекой Волма(400м) и 2 МКАДом(2,5 км) в живописном месте продается респектабельный загородный дом(156/102.8/29.5) в СТ "Сокол", Смолевичского района.

Территория закрытого типа, по звонку.

Есть утвержденный проект на дом. Материал стен - г/с блок(400), крыши - черная матовая широковолновая металло-черепица(фирма "Изомат"), фундамент-монолитная плита, железобетонные плиты перекрытия.

Коммуникации: электричество разведено по дому, газ у дома(в товариществе центральный газ), сезонная вода(отводы сделаны в дом), выкопаны 2 колодца под местную канализацию(заведена в дом) + колодец для сбора сточных вод.

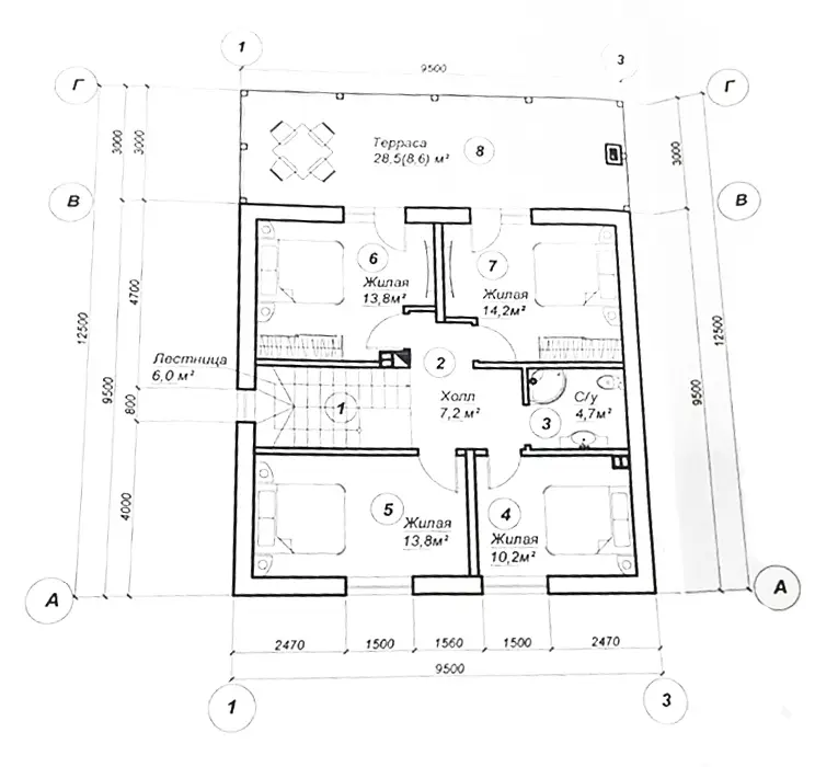
Планировка коттеджа:

1 этаж - навес, прихожая, топочная, коридор, с/у, кухня, терраса, 1 жилая комната;

мансардный этаж - лестница, холл, с/у, 4 жилые комнаты, балкон.

Окна и панорамные двери ламинированные(фирма "Еврофасад"), стеклопакеты с затемнением, сделаны трубы для стока воды.

Участок 10 соток в частной собственности, огражден с 3 сторон капитальным забором из металлопрофиля.

На территории участка есть хозпостройка с навесом и подвалом.

Отличные подъездные пути(асфальт и гравийная дорога 2.5 км).

С/т примыкает к деревне Березовая гора.

До леса 900м. Пляж для купания в 500 м. 22 км от МКАД по Могилевской трассе, 26 км - по Московской.

Рассматриваем обмен на квартиру в Минске.

Прекрасное место для отдыха на природе.

!Смотрите еще больше дач на нашем Telegram канале @nedvizhimost_bel

Код объекта: 184265 Договор с собственником: 157/1 от 29.09.2025 Опубликовано: 01.10.2025 Обновлено: 26.01.2026
0 / 13 / 272
Дача, 156 м2
Сокол
283 071 р.
Инна
Пожалуйста, скажите, что нашли этот объект на Domovita.by
+
Фильтр сохранен