О доме
Коммуникации
Описание
Коттедж с полностью готовым современным дизайнерским ремонтом!
Достойное предложение, для тех, кто любит природу, ценит качественную кирпичную застройку дома и хочет ощущать комфортную загородную жизнь со всеми преимуществами города.
Конструктив
Фундамент: монолитно ленточный
Стены: наружные – кирпич в 3 ряда, внутренние – кирпич.
Фасад: выполнен из наружной штукатурки, вентилируемая система утепления плитами из минеральной ваты, окрашен.
Кровля: стропильная система, утепленная и изолированная композитная кровля.
Коммуникации
Отопление: центральное газовое, котел,
Обогрев помещений - радиаторы, водные теплые полы.
Водоснабжение: - центральное.
Канализация: центральная, все сети полностью разведены по дому, подключены.
Вентиляция: проточно-вытяжная
Электричество: полностью разведено по дому с электрощитами. Освещение многоуровневое с возможностью организовать несколько сценариев. 1 этаж с интеграцией в систему «Умный Дом», через приложение. Установлен мастер выключатель цокольного этажа, а также полного выключение освещения в доме. Подсветка с регуляторами яркости.
Внутренняя отделка
Интерьер выполнен по индивидуальному дизайнерскому проекту с использованием только качественных материалов. Новому собственнику не нужно продумывать дизайн и совершать долгие ремонтные работы.
Спокойные, гармоничные тона.
Стены полностью отштукатурены, часть помещений окрашена, часть декоративная штукатурка. Мокрая зона керамогранит.
На всех окнах стеклопакеты.
Межкомнатные двери скрытого монтажа.
Потолки подвесные с освещением.
Пол керамогранит
Все санузлы укомплектованы всем необходимым сантехническим оборудованием: инсталляция, душевая кабина, умывальник, полотенцесушитель, смесители, мебель. Установлена система от проточек воды.
Кухня со встроенной подключенной техникой.
Спальня и детские комнаты оборудованы всей необходимой мебелью.
Дом
Проект дома представляет собой два этажа и цокольный этаж. Грамотная продуманная планировка пространства.
Первый этаж. Просторная гостиная с кухней и панорамными окнами, что обеспечивает поступление большого количества естественного света и визуальное увеличение пространства. Из кухни выход на террасу, отдельная кладовая для хранения. Гардеробная, санузел, кабинет, холл и прихожая.
Просторный гараж с входом в коттедж, это удобное преимущество в холодный период года.
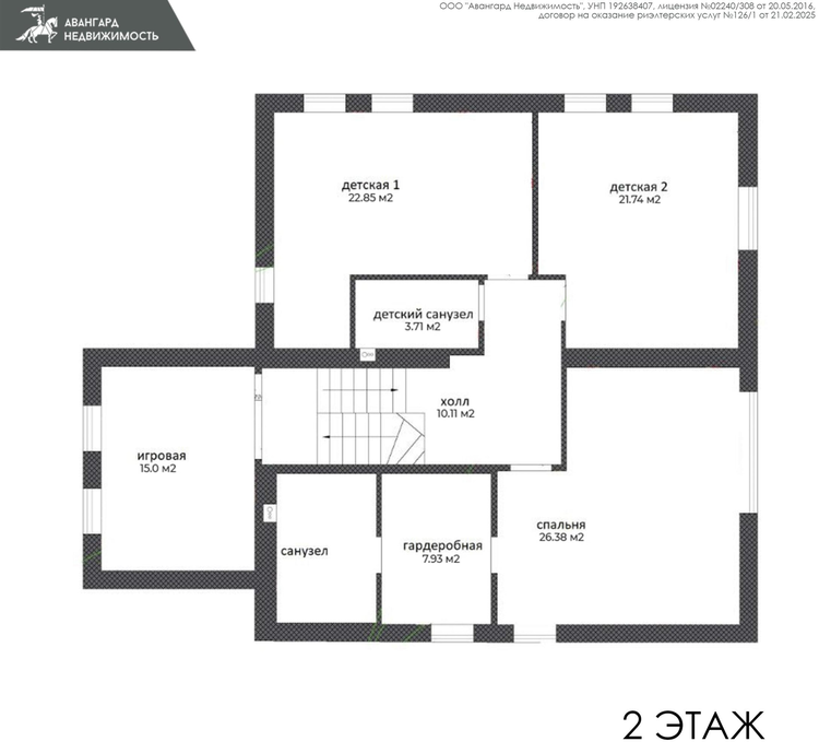
Второй этаж. Две детские комнаты, спальня с хозяйский санузлом, гардеробной. На этаже общий санузел.
Между первым и вторым этажом - отдельная комната выделена под игровую, либо можно оборудовать любое помещение по своему усмотрению.
Цоколь. Предусмотрена зона отдыха с баней, отдельный большой кинозал, постирочная, котельная, комната для хранения.
На въездной зоне участка имеется навес для авто, а также несколько парковочных мест.
Участок расположен рядом с сосновым лесом. Такое предложение встречается редко. Можно наслаждать прогулками, собирать грибы и ягоды.
Участок с домом находится в пригородной коттеджной застройке, которая оборудована шлагбаумом, что обеспечивает безопасность. Дома здесь — воплощение комфорта загородной жизни со всеми преимуществами жизни в городе. Удаленность от города всего 500м.
Подъездные пути асфальтированы. В 5 минутах ходьбы продуктовый гипермаркет, строительный центр, к транспортной остановке 3 минуты. Быстрый выезд на МКАД, что позволяет быстро добраться в любой конец города. Без проблем любая доставка.
Если Вам интересно предложение, звоните, ответим на все возникшие вопросы и будем рады показать!
Поможем продать ваш объект для покупки этого
Новые объекты в продаже каждый день
Бесплатный выезд риэлтора для оценки объекта
Поможем проверить самостоятельно найденный объект - услуга Свой Вариант

















