О квартире
Площадь
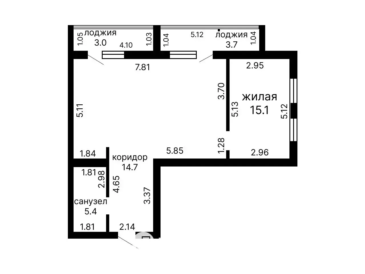
66.2 м2
общая
32.4 м2
жилая
13.7 м2
кухня
Отдельных комнат
2 комнаты
Санузел
совмещенный
Балкон
Лоджия
Тип ремонта
С отделкой
О доме
Этаж
4 из 7
Материал стен
Кирпичный
Год постройки
2014
Описание
Просторная и светлая квартира в тихом поселке Сонечны.Продаётся уютная квартира в загородном поселке Сонечный Минского района с идеальной локацией. Квартира с готовым современным ремонтом, расположена на 4-ом этаже 7-ми этажного дома.Застекленные лоджии, установлены стеклопакеты ПВХ, входная металлическая дверь, встроенная кухня с техникой европейских производителей. В санузле установлена душевая кабина и качественная сантехника.Выполнен качественный ремонт, над которым работала команда профессионалов. Хорошая звукоизоляция. Продуманное освещение по всей квартире создает уютную атмосферу в любое время суток. Грамотно организованное пространство и системы хранения делают квартиру идеальной для жизни. Эта квартира сочетает в себе стиль, комфорт и современные технологии. В отделке использованы только качественные материалы. Над каждым элементом ремонта и отделкой велась профессиональная и кропотливая работа.Окна квартиры выходят на обе стороны дома, что даёт много естественного света.Тихий зелёный двор. Ухоженная и закрытая придомовая территория. Идеально для тех, кто ценит современный комфорт и свободу!Для владельцев автомобилей приятным бонусом станет наличие удобной парковки, где всегда можно без проблем припарковаться. Эта квартира – идеальный вариант для тех, кто ищет сочетание удобства, функциональности и спокойствия загородной жизни рядом с городом. В шаговой доступности лесной массив. Во дворе – детские и спортивные площадки, специально отведенные места для хранения велосипедов. В шаговой доступности расположены: ТРЦ "Экспобел", гипермаркет "Гиппо", строительный гипермаркет "Ома".Доброжелательные, интеллигентные соседи!Удобный выезд на МКАД.Прямая продажа.Если Вы ищите современное жилье с комфортом и стилем – эта квартира создана для Вас! Звоните, чтобы узнать подробности и договориться о просмотре.Двухкомнатная квартира Сосновая ул. 5 (Пригород)Материал стен: кирпичный. Год постройки: 2014.Этаж: 4/7, 2 лоджии застекленныеОбщая площадь: 66.2. Жилая площадь: 32.4. Площадь кухни: 13.7. Высота потолка: 2.71.Смотреть подробнее ТОП-20 ДЕШЕВЫХ КВАРТИРБАЗА ПОКУПАТЕЛЕЙ – узнайте, кто готов купить вашу квартиру прямо сейчас!КАЛЬКУЛЯТОР СТОИМОСТИ ЖИЛЬЯ – онлайн- расчет стоимости вашей квартиры!ПЕРЕЕЗЖАЕМ В НОВОСТРОЙКУ- программа обмена старого жилья на новое. 2 сделки в 1 день!ПАРТНЕР-КРЕДИТ сопровождение кредитования для покупки и обмена «под ключ»ВАШ ВАРИАНТ- проверка квартир перед покупкой и оформление сделки, если вы нашли объект самостоятельно. ООО "Твоя столица", УНП 101136973, лицензия №02240/15 от 17.02.05г.
Агент
10 лет на сайте
Показать почту
Пожаловаться на объявление
Агентство недвижимости
ТВОЯ СТОЛИЦА АГЕНТСТВО НЕДВИЖИМОСТИ
УНП: 101136973 Лицензия: от 17.02.2005 № 47
Договор №: 11.11.2025 №1092/13



























