Подать БЕСПЛАТНО

Продать 1-этажный дом в Сороковщиной, Минская область ул. Вишнёвая, д. 8, 109900USD, код 657652

Минская область, д. Сороковщина, ул. Вишнёвая, 8
Показать на карте
Слуцкое направление
26 км от МКАД
330 667 р.
Код объекта: 657652
151.23 м2
15 соток
Обновлено: 20.03.2026
330 667 р.
Предложить свою цену

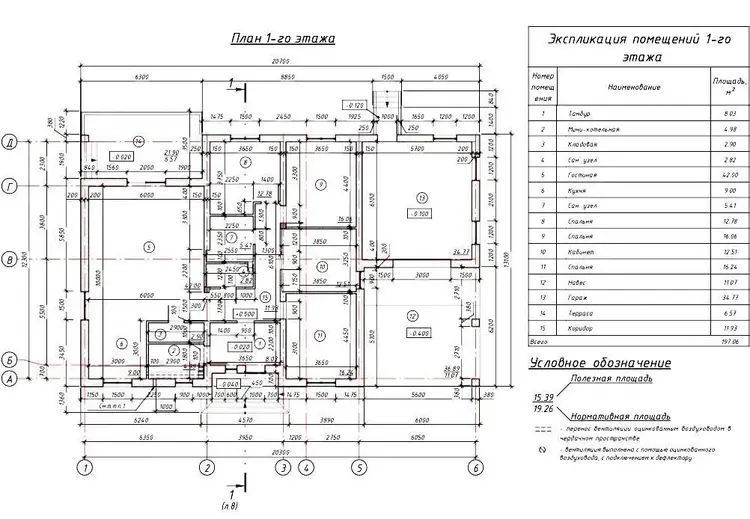
О доме

Площадь общая
151.23 м2
Площадь дома
151.23 м2
Участок
15 соток
В продаже
Целый дом
Год постройки
2025
Материал стен
Блоки

Коммуникации

Газ: В доме
Электричество: Есть
Канализация: Есть

Описание

Дом в деревне Сороковщина,Узденский р-н, Минская область, Озерский с/с. Слуцкое направление 25 км от Мкад.

Общая 151,23 м.кв, жилая 99,59 м.кв в том числе кухня-гостиная 49,0 м.кв.Терраса 6,57 м.кв.

Фундамент: Утеплен 5 см. Пятка 75 см на 35 см. 2 сетки из 12 арматур через лягушки. Марка бетона 400. Блок ФБС 300 см. 3 ряда на доме,4 ряда на подвале. Монолитный пояс 30 см, арматура 12 диаметра. Марка 300.

Черновые полы 10 см сека ячейка 40*40, 4мм, под будущие перегородки. Арматура в нижнем сечении 10 диаметра, 20 см бетона. Марка бетона 200.

Все гильзы под будущие коммуникации заложены.

Стены: Керамзитбетон 300мм (Новолукомоль), утеплен пенопластом 10 см.

Окна: Профиль 75мм, ламинация снаружи и тонировка стекла, с защитой от ультрафиолета.

Крыша металлочерепица. 5мм и 200 гр на 1м2 оцинковки(металопрофиль Заславль)

Перекрытие: деревянное, часть 200*50, 200*100.

Водоснабжение: собственная скважина.

Электричество-380В.

Канализация: по дому разведена.

Участок 15 соток 

Напишите нам в удобный для Вас мессенджер:

Viber | Telegram | WhatsApp

Ответим на Ваши вопросы, предоставим всю необходимую информацию.

УНП 193734126

220034, г. Минск, ул. Платонова, дом 1Б,

кабинет 7, 7 этаж.

ООО «СидНеА» организация и проведение торгов, конкурсов.

Договор № 173/1 от 16.03.2026 г.

Торговая площадка ООО "СидНеА"Юридическое лицо
2 года на сайте
Показать почту
Пожаловаться на объявление

Местоположение

Минская область, д. Сороковщина, ул. Вишнёвая, 8
Опубликовано: 20.03.2026