Купить 1-этажную дачу в Аист Минская область, 14900USD, код 185480

35 м2
Дача
Город Аист
Адрес д. 292
Направление Молодечненское
Удаленность от МКАД 23 км
Год постройки 1984
  
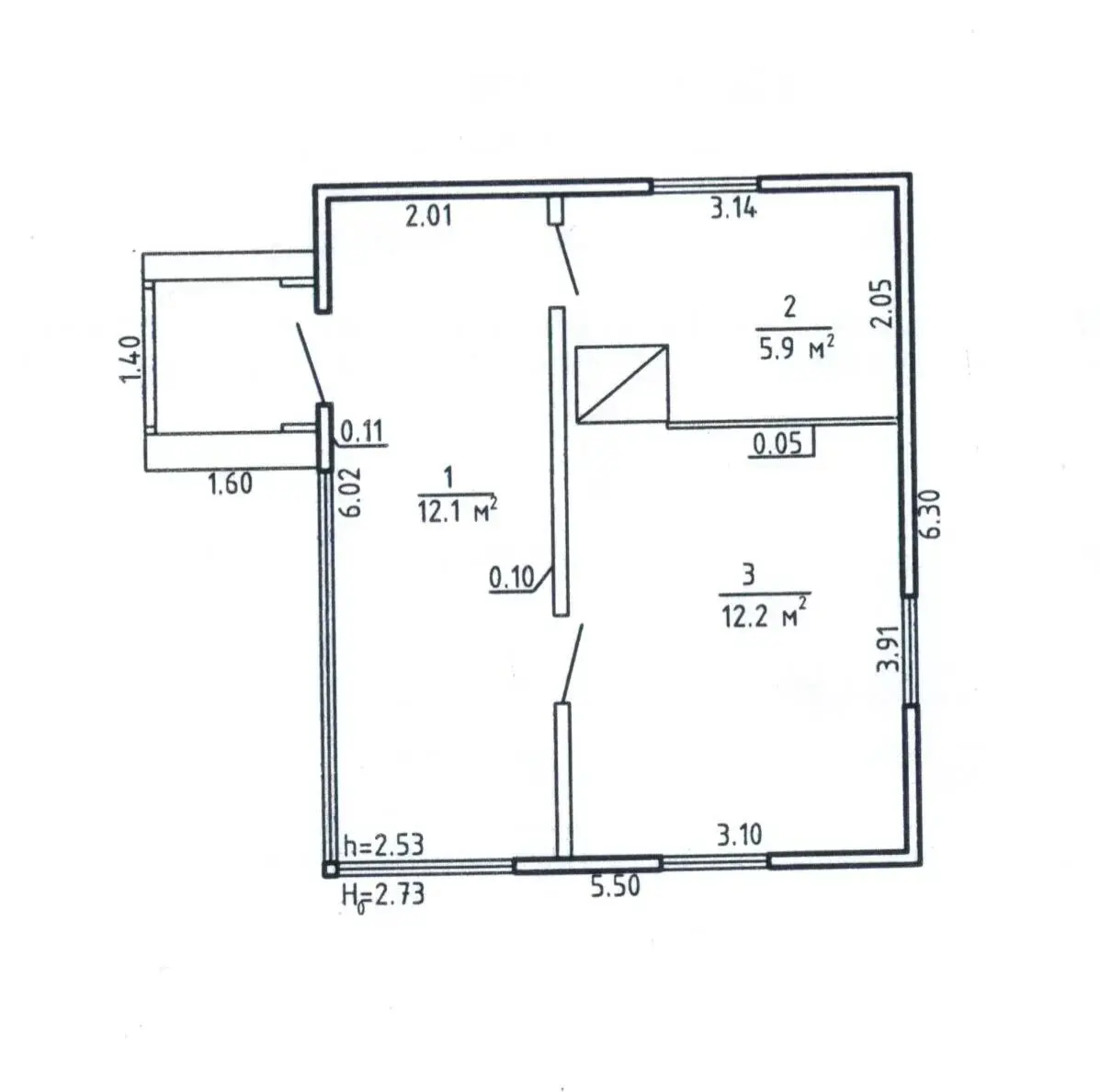
Общая площадь 35 м2
Участок 6.59 соток
Площадь дома 35 м2
Этажей 1
Материал стен Дерево
Тип отопления Печное
Канализация Есть

Описание

Продаётся компактный, комфортный, одноэтажный сборно-щитовой садовый домик,
расположенный в Минском районе, в 23 км от МКАД. Молодечненское направление, вблизи деревни Горошки и Историко-культурного комплекса " Линия Сталина". СТ окружён сосновым лесом. 

Ровный участок - 6 соток. Плодородная почва. Имеются многолетние насаждения. Плодородные деревья.  Есть хозпостройка - сарай (для инвентаря), туалет.  Теплица (под плёнкой).

Садовый домик - сборно-щитовой. Полностью готов к проживанию. Проведена реконструкция  в 2019 году.

Крыша новая - ондулин. Утепление - стекловата+сайдинг. Дом тёплый.

В доме имеется сухой подвал для хранения.

Выполнен косметический ремонт: обои, на полу - доска дуб/сосна. трёхкамерные стеклопакеты ПВХ. Заменена проводка. Вывод освещения на улицу. Участок ограждён забором (сетка рабица).

Показ по предварительной записи в удобное для Вас время.

Поможем продать Вашу недвижимость для покупки этого объекта.

Консультации по кредитованию, лизингу.

Напишите нам в удобный для Вас мессенджер:

Viber | Telegram | WhatsApp

Ответим на Ваши вопросы, предоставим всю необходимую информацию.

РУП «Минское городское агентство по государственной регистрации и земельному кадастру»

Код объекта: 185480 Договор с собственником: 80/6 от 2026-04-10 Опубликовано: 11.04.2026 Обновлено: 11.04.2026
20 / 57 / 57

Вы просматривали

Дача, 35 м2
Аист, д. 292
42 337 р.
Валентина
Пожалуйста, скажите, что нашли этот объект на Domovita.by
+
Фильтр сохранен