Купить 1-этажную дачу в Чайка Минская область, 49000USD, код 185587

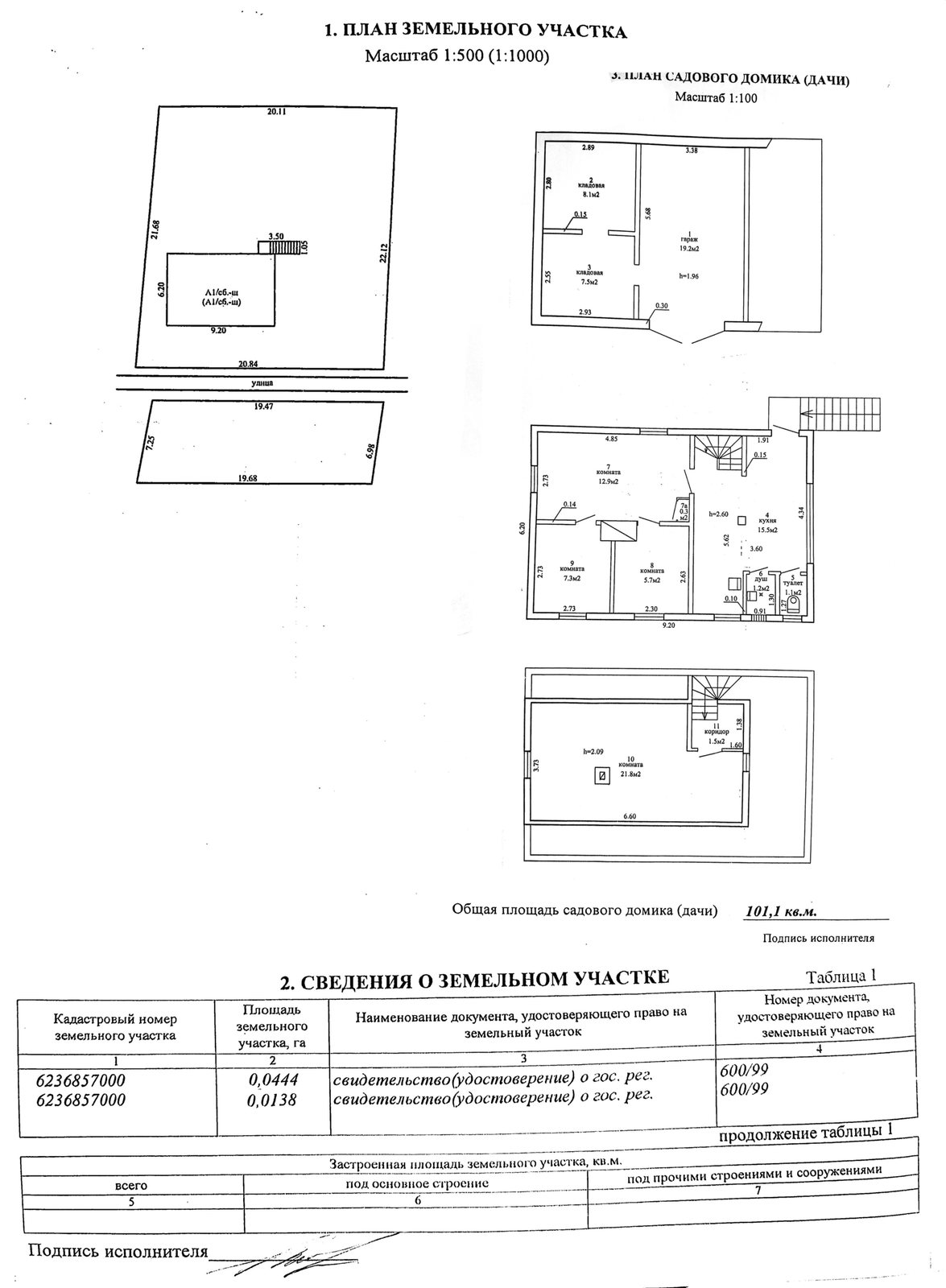
101.1 м2
Дача
Город Чайка
Адрес д. 5
Направление Молодечненское
Удаленность от МКАД 32 км
Год постройки 1981
  
Общая площадь 101.1 м2
Участок 5.82 соток
Площадь дома 101.1 м2
Этажей 1
Материал стен Дерево
Тип отопления Электрическое
Канализация Есть

Описание

Дача в СТ «Чайка», рядом Турковщина и Петришки.

  • Молодеченское направление, 27 км от Минска
  • Удобный подъезд, асфальт до СТ, по территории СТ асфальтная крошка и гравий
  • Участок крайний к лесу с грибами и ягодами
  • Дача состоит из двух участков площадью (1.38 + 4.44)= 5.82 соток
  • Комфортная парковка на три больших авто
  • Дом полностью реконструирован в 2016
  • Сборно- щитовая конструкция дома, обшита сайдингом
  • Стеклопакеты
  • Дом утеплён, возможны зимние визиты на дачу
  • Крыша: еврошифер
  • 4 жилых комнаты (2 небольшие спальни для детей +проходная гостиная)
  • Мансардный родительский этаж с отдельной видовой комнатой отдыха
  • Просторная кухня 15.5 м2
  • Санузел в доме
  • Отопление Электрическое + Печное с возможностью приготовить еду в печи на открытом огне
  • Полностью замененная современная хорошего качества электрика и сантехника
  • Сигнализация
  • Есть подвал-гараж по периметру всего дома
  • Вода сезонная
  • Залита бетоном специальная площадка под бассейн или батут
  • Беседка с подогревом и ветрозащитой
  • Ландшафтный дизайн участка с декоративными растениями
  • Очень приятные и позитивные соседи

Близко к даче:

  • Продуктовый магазин на территории Садового Товарищества
  • Маршрутное такси №499, 406ТК
  • Электричка: Станция "Радошковичи"
  • Потрясающий сезонный рынок в Петришках (Есть всё и даже больше)
  • Продуктовые и хоз.магазины в Петришках

Звоните! Ответим на все интересующие вопросы.

Со сроками и условиями проведения торгов (конкурсов), указанными в извещении о проведении торгов (конкурсов) можно ознакомиться в газете "ЗВЯЗДА" № 38(30677) от 26.02.2026г.

Торговая площадка ООО "Вектор Дом" - организация и проведение конкурсных торгов.

УНП 193922679  220030, г. Минск, ул. Зыбицкая, 6, пом.39

Договор № 20/1 от 16.01.2026г.

Код объекта: 185587 Опубликовано: 24.01.2026 Обновлено: 13.04.2026
5 / 62 / 87

Вы просматривали

Дача, 101.1 м2
Чайка, д. 5
137 891 р.
Торговая площадка ООО "Вектор Дом"
Пожалуйста, скажите, что нашли этот объект на Domovita.by
+
Фильтр сохранен