Выберите валюту для сайта:
BYN
Подать БЕСПЛАТНО

Купить 2-этажную дачу в Импульс Минская область, 15500USD, код 183878

100 м2
49 424 р.
Дача
Город Импульс
Адрес д. 144
Направление Пуховичское
Удаленность от МКАД 45 км
Год постройки 1989
  
Общая площадь 100 м2
Участок 6.93 соток
Площадь дома 100 м2
Этажей 2
Материал стен Дерево
Тип отопления Печное
Водоснабжение Центральное
Канализация Есть

Описание

 

Двухэтажный дом из соснового сруба, обложен кирпичем, с цокольным этажом, 1989 года, на просторном, крайнем участке 6.93 сотки, в 6 км от Руденска, 45 км от г. Минска

Адрес: СТ “Импульс”, Пуховичское направление

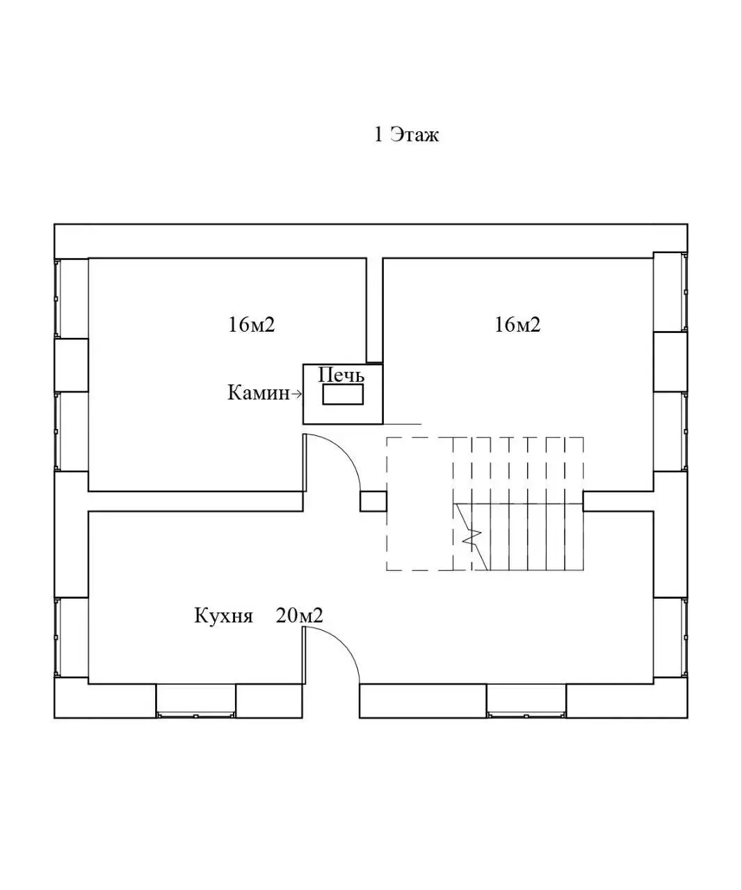
Планировка дома
Дом в 2 этажа + цокольный.
Размеры дома по внешнему периметру: 8 м *10 м
Общая площадь дома со всеми техническими и подсобными помещениями (по СНБ) около 100,0  кв.м.
Первый этаж: две жилые комнаты по 15-16 кв.м., кухня 20 кв.м. На кухне оборудован глубокий бетонированный погреб, кладовая комната под лестницей.
Обустроенный мансардный этаж в 20 кв.м. По всему дому высокие потолки  2,5-2,7 м.
Цокольный этаж в 25 кв.м.


Характеристика строения, коммуникации
Фундамент - фбс блоки. Ж/б перекрытие между цокольным и 1 этажом, деревянные балки между 1 и мансардой.
Устанавливался дом из соснового бревна, снаружи обкладывался кирпичем.
Кровля - шифер, без утепления, гидроизолирована рубероидом.
Отопление - камин и добротная  печь с лежанкой.
По всему дому установлены утепленные стеклопакеты ПВХ, дом очень светлый!
Коммуникации: электричество 220, сезонная вода - заведена в дом, канализация - выгребная яма, вода уходит в землю.

Участок
Участок 6,93 сотки , частная собственность, крайняя улица, с двух сторон без примыкающих соседей.
Санузла в доме нет, можно установить биотуалет (для этой цели использовать под санузел кладовое помещение в доме на 1 этаже)
Участок разработан, высажены декоративные растения, есть плодоносящий сад

Инфраструктура рядом
В 2.5 км - ближайший магазин на территории товариществ. В 6,5 км — железнодорожная станция "Руденск" с необходимой инфраструктурой.
В 6/ 10 км - водоемы, отличное место для рыбалки и отдыха, известное место для туризма Дудутки.

Можно добраться
На машине: Выезд на дачу по Аэродромной через Сеницу или Могилевское шоссе через Руденск. Время в дороге от края кольцевой 45 - 50 минут
Своим ходом: 1) электричкой Минск - Руденск, пройти 4 км. С Руденска ходит автобус 883, можно подъехать 1 остановку и  пройти 1,9 км или 20 мин шагом; 2) Маршруткой 2334 с остановки Станция Метро Слуцкий гостинец до СТ Строитель,  пройти 1,82 км или 22 мин шагом.

Не упустите шанс приобрести уютную дачу!

Звоните и записывайтесь на просмотр!
Поможем продать Вашу недвижимость для покупки этой! 

Гарантия безопасности сделки и полное юридическое сопровождение!

Код объекта: 183878 Договор с собственником: 340/1 от 2025-08-18 Опубликовано: 19.08.2025 Обновлено: 16.02.2026
8 / 10 / 151
Дача, 100 м2
Импульс, д. 144
45 465 р.
Наталья
Пожалуйста, скажите, что нашли этот объект на Domovita.by
+
Фильтр сохранен