Продажа 2-этажной дачи в Минская область, 19900USD, код 185357

51.1 м2
60 900 р.
Дача
Город Мечта
Адрес Мечта
Направление Московское
Удаленность от МКАД 31 км
Год постройки 2005
  
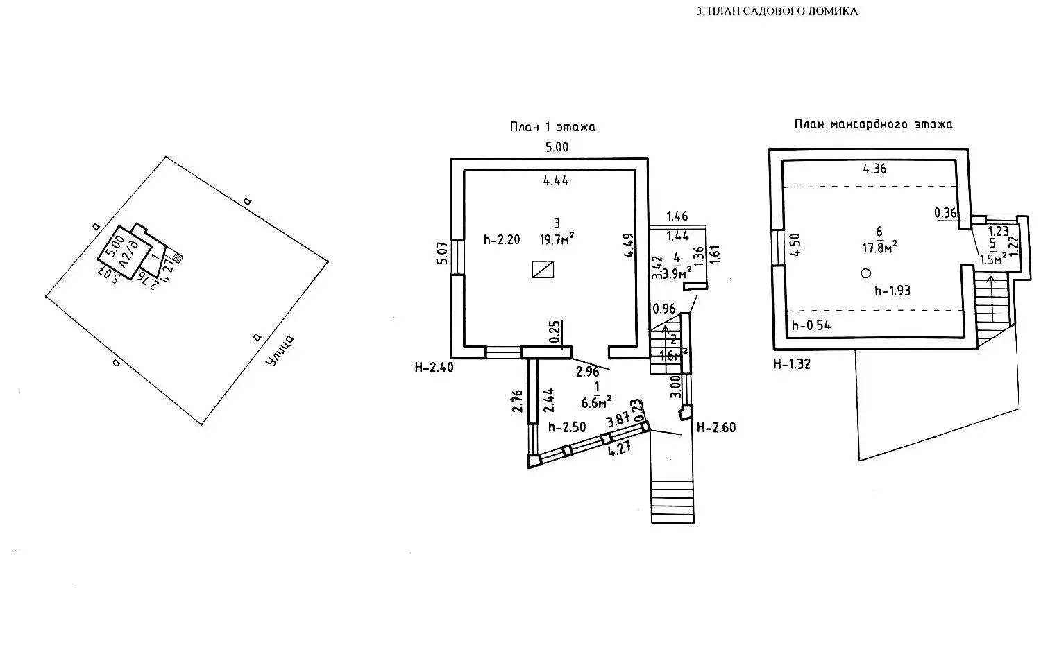
Общая площадь 51.1 м2
Участок 6.28 соток
Площадь дома 51.1 м2
Этажей 2
Материал стен Дерево
Тип отопления Печное
Водоснабжение Колодец
Канализация Есть

Описание

Продается садовый дом и земельный участок в СТ «Мечта» Смолевичского района, площадь земельного участка – 6.3 сотки,42 км от Минска.

  Дом построен в 2005 году и расположен на возвышенной части, на территории растут красивые березы, ягодные кусты, плодовые деревья. Стены –деревянный брус, обшит вагонкой. Окна – стеклопакеты. Полы дощатые, кровля-шифер. На первом этаже расположена небольшая кухня и просторная гостиная. На втором просторная спальня. Рядом построен уютный туалет с душевой кабиной. Вода-скважина, введена в дом. Отопление печное (современная печь на дровах).

  Садовое товарищество расположено в 15 минутах ходьбы до станции «Домошаны».

  Приглашаем на просмотр.  Торг уместен.

Лицензия: №02240/362 от 31.07.2018, Министерство юстиции РБ

Код объекта: 185357 Договор с собственником: 407/1 от 2026-04-01 Опубликовано: 02.04.2026 Обновлено: 09.04.2026
12 / 33 / 65
Дача, 51.1 м2
Мечта
57 710 р.
Диана
Пожалуйста, скажите, что нашли этот объект на Domovita.by
+
Фильтр сохранен