Выберите валюту для сайта:
BYN
Подать БЕСПЛАТНО

Продажа 2-этажной дачи в Приозерное Брестская область, 28000USD, код 184748

85 м2
Дача
Адрес Приозерное
Год постройки 1992
  
Общая площадь 85 м2
Участок 4.00 сотки
Площадь дома 85 м2
Этажей 2
Материал стен Дерево
Отделка -
Тип отопления -
Водоснабжение Скважина

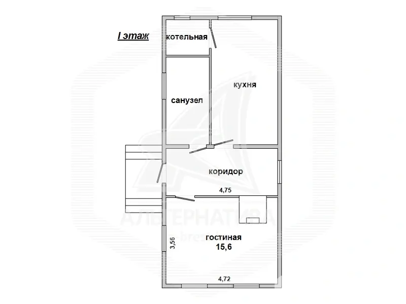
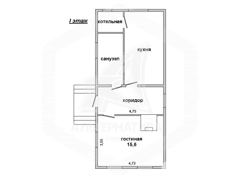
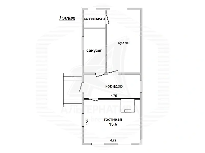
Описание

Садовый домик в Брестском р-не. 1992 г.п. 1 этаж, мансарда. Общ.- 85,0 кв.м. 2 комнаты. Стены: материал - строительный брус; утепление - минеральная вата; отделка фасада - штукатурка "американка". Кровля: шифер. Фундамент: ленточный монолитный; материал - бетон. Коммуникации: отопление - котел на твердом топливе и печь, газ - централизованный (по улице, взносы не оплачены), водоснабжение - скважина и гидрофор, электричество - централизованное. Участок - 0,0400 га. Лот - 252253. Смотреть подробнее.

Здесь можно подписаться на рассылку новых предложений и снижения цен по ДАЧАМ и УЧАСТКАМ в Брестском регионе прямо Вам в Viber или Telegram ЗАО «АЛЬТЕРНАТИВА Брест». УНП 291427570 Лицензия № 02240/303 от 02.02.2016г. Договор номер 2253/1 от 24.12.2025
Код объекта: 184748 Договор с собственником: 24.12.2025 №2253/1 Опубликовано: 31.12.2025 Обновлено: 30.01.2026
2 / 2 / 24
Дача, 85 м2
Приозерное
80 315 р.
Сацюк Андрей Владимирович
Пожалуйста, скажите, что нашли этот объект на Domovita.by
+
Фильтр сохранен