Выберите валюту для сайта:
BYN
Подать БЕСПЛАТНО

Продажа 2-этажной дачи в Прогресс Брестская область, 17000USD, код 172747

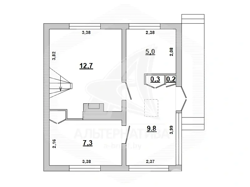
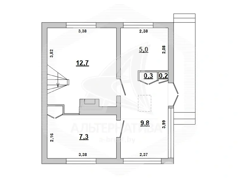
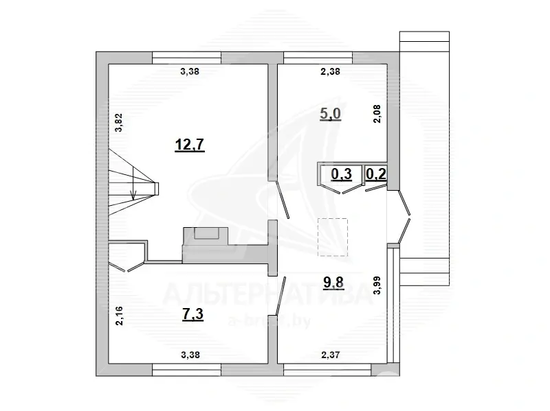
35.6 м2
Дача
Город Прогресс
Адрес Прогресс
Год постройки 2002
  
Общая площадь 35.6 м2
Участок 5.00 соток
Площадь дома 35.6 м2
Этажей 2
Материал стен Блоки
Тип отопления Печное
Водоснабжение Скважина

Описание

Садовый домик в Малоритском р-не. 1 этаж, мансарда. Общ.- 35,6 кв.м. 3 комнаты. Стены: материал - газосиликатный блок; отделка фасада - оштукатурен, окрашен. Кровля: шифер. Фундамент: ленточный монолитный; материал - бетон; подушка - песчано-гравийная. Коммуникации: отопление - печь, газ - привозной газовый баллон, водоснабжение - скважина и гидрофор, электричество - централизованное. Хоз.постройки: летняя кухня. Участок - 0,0500 га. Лот - 230643. Смотреть подробнее.

Здесь можно подписаться на рассылку новых предложений и снижения цен по ДАЧАМ и УЧАСТКАМ в Брестском регионе прямо Вам в Viber или Telegram ЗАО «АЛЬТЕРНАТИВА Брест». УНП 291427570 Лицензия № 02240/303 от 02.02.2016г. Договор номер 643/1 от 06.03.2023
Код объекта: 172747 Договор с собственником: 06.03.2023 №643/1 Опубликовано: 11.03.2023 Обновлено: 28.01.2026
0 / 0 / 157
Дача, 35.6 м2
Прогресс
48 763 р.
Усюкевич Денис Владимирович
Пожалуйста, скажите, что нашли этот объект на Domovita.by
+
Фильтр сохранен