Выберите валюту для сайта:
BYN
Подать БЕСПЛАТНО

Продажа 2-этажной дачи в Новые земли Минская область, 78000USD, код 184199

97.9 м2
232 405 р.
Дача
Адрес Новые земли
Направление Могилевское
Год постройки 2025
  
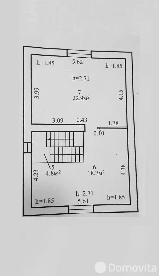
Общая площадь 97.9 м2
Участок 7.98 соток
Площадь дома 97.9 м2
Этажей 2
Материал стен Блоки
Тип отопления Печное
Водоснабжение Колодец
Канализация Есть

Описание

Продаётся дача 97,9 м2 с террасой в СТ «Новые земли» не далеко от Минска.

Просторный и современный дом 2025 года постройки общей площадью 97,9 м2, расположенный на участке в одном из самых перспективных садовых товариществ Минского района.

О доме:

  • 1 этаж + уютная мансарда — продуманная планировка для комфортного проживания;
  • большая терраса 32 м2 — отличное место для отдыха и встреч с друзьями;
  • все коммуникации заведены в дом (электричество, вода, канализация);
  • современный санузел;
  • полы с подогревом;
  • печь-камин, создающая особую атмосферу уюта.

О месте:

  • СНТ «Новые земли» расположено всего в 18–20 км от МКАД по Могилёвскому направлению;
  • экологически чистый район: рядом леса и грибные места, недалеко водоёмы;
  • товарищество молодое (основано в 2020 году), активно развивается — соседи строятся, формируется новая, современная атмосфера;
  • участок оптимального размера, удобный для ухода и обустройства.

Преимущества:

  • новый дом без дополнительных вложений;
  • перспективный район;
  • комфорт для круглогодичного проживания и отдыха;
  • близость к Минску и удобный подъезд.
  • есть потенциал роста цен на участки после полного благоустройства и формирования инфраструктуры садового товарищества.

Это предложение идеально подойдёт тем, кто ищет современную дачу или дом для постоянного проживания вблизи столицы.

ООО «ЭТАЖИ юнайтед»

УНП: 193673318

Договор 2005/1 от 22.09.2025

Лицензия на оказание риэлтерских услуг №02240/460 МЮ РБ от 03.04.2023

Код объекта: 184199 Договор с собственником: 2005/1 от 2025-09-22 Опубликовано: 16.10.2025 Обновлено: 29.11.2025
2 / 11 / 61
Дача, 97.9 м2
Новые земли
226 879 р.
Виталий
Пожалуйста, скажите, что нашли этот объект на Domovita.by
+
Фильтр сохранен