Выберите валюту для сайта:
BYN
Подать БЕСПЛАТНО

Продажа 2-этажной дачи в Ветеран Брестская область, 120000USD, код 183649

142.5 м2
Дача
Город Ветеран
Адрес Ветеран
Год постройки 1994
  
Общая площадь 142.5 м2
Участок 4.98 соток
Площадь дома 142.5 м2
Этажей 2
Материал стен Блоки
Отделка С ремонтом
Тип отопления Газовое
Водоснабжение Скважина

Описание

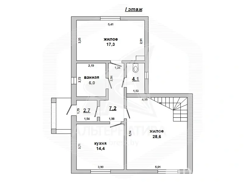
Дачный дом жилого типа в Брестском р-не. 1994 г.п. Реконструкция 2025 г. 1 этаж, мансарда. Общ.СНБ - 142,5 кв.м, общ.- 142,5 кв.м, жил.- 94,7 кв.м, кух.- 14,4 кв.м. 4 комнаты. Стены: материал - газосиликатный блок; утепление - пенополистирол (пенопласт); отделка фасада - оштукатурен, окрашен. Кровля: металлочерепица. Фундамент: ленточный монолитный; материал - бетон; подушка - песчано-гравийная. Коммуникации: отопление - газовый котел, газ - централизованный (в доме), водоснабжение - скважина и гидрофор, электричество - централизованное, канализация - автономная. Хоз.постройки: гараж. Участок - 0,0498 га. Лот - 251434. Смотреть подробнее.

Здесь можно подписаться на рассылку новых предложений и снижения цен по ДАЧАМ и УЧАСТКАМ в Брестском регионе прямо Вам в Viber или Telegram ЗАО «АЛЬТЕРНАТИВА Брест». УНП 291427570 Лицензия № 02240/303 от 02.02.2016г. Договор номер 1434/1 от 29.07.2025
Код объекта: 183649 Договор с собственником: 29.07.2025 №1434/1 Опубликовано: 31.07.2025 Обновлено: 08.03.2026
0 / 4 / 43
Дача, 142.5 м2
Ветеран
361 056 р.
Семечко Наталья Николаевна
Пожалуйста, скажите, что нашли этот объект на Domovita.by
+
Фильтр сохранен