Объект в архиве
К результатам поиска

Продажа 2-этажной дачи в Экспресс Минская область, 13800USD, код 183448

68 м2
Объект в архиве
Уважаемые пользователи, данное объявление больше не актуально. Поэтому мы убрали все контакты продавца.
Продолжить поиск
Дача
Город Экспресс
Адрес Экспресс
Направление Молодечненское
Удаленность от МКАД 23 км
Год постройки 1987
  
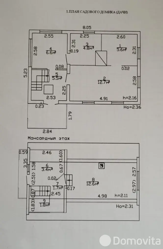
Общая площадь 68 м2
Участок 4.00 сотки
Площадь дома 68 м2
Этажей 2
Материал стен Дерево
Тип отопления Печное
Водоснабжение Центральное

Описание

Продается уютная дача в 25 км от МКАД рядом с историко-культурным комплексом

«Линия Сталина» в СТ «Аист».

На участке в 4 сотки расположены компактный деревянный домик с мансардой , балконом и террасой,  дровник, баня, утопающие в зелени.

Дом представляет из себя 2 жилые комнаты, столовая, кухня на первом этаже, и 2 спальни на втором.

Удобное расположение дома, 30 мин. на авто от г. Минска и вы у себя на даче. Участок расположен на окраине товарищества в 2 мин. хотьбы от леса, где в свободное время можно насладится сбором грибов, ягод. Для любителей сада, огорода имеется в наличии дополнительно от придомовой территории 2.5 сотки земли.

Из коммуникаций: электричество, водоснабжение центральное, отопление печное.

Частное унитарное предприятие «Дианэст», УНП 190124316,  лицензия №02240/54  от  06.06.2005.  Договор №140/4 от 01.07.2025

Код объекта: 183448 Договор с собственником: 140/4 от 2025-07-01 Опубликовано: 10.07.2025 Обновлено: 09.04.2026
0 / 0 / 408
+
Фильтр сохранен